Khu dân cư DC1, tổ 4 phường Hoàng Diệu - Tp Thái Bình ( Đối diện cổng đài phát thanh và truyền hình Thái Bình )

Điện thoại: 0916.133.582

Email: kientructhanhthai@gmail.com

X

Mẫu 03 – Biệt thự 2 tầng tại Liên Giang, Đông Hưng, Thái Bình

1/ Giới thiệu về mẫu thiết kế biệt thự 2 tầng.

Vẫn là lối kiến trúc theo phong cách cổ điển (với cột sảnh lớn, cửa sổ mái, mái vòm…) tuy nhiên các chi tiết phào chỉ được lược bớt khá nhiều, tạo cho công trình vẻ thanh thoát và bớt cảm giác cục mịch. Đó chính là phong cách kiến trúc tân cổ điển. Dưới đây là những thông tin cơ bản về mẫu thiết kế biệt thự 2 tầng tân cổ điển tại Thái Bình:

– Địa chỉ xây dựng: tại Liên Giang, Đông Hưng, Thái Bình

– Diện tích xây dựng là: 95m2 (kích thước đất xây dựng tối thiểu là 14,5mx7m)

– Tổng diện tích sàn xây dựng 195m2

– Số tầng xây dựng công trình: 2 tầng

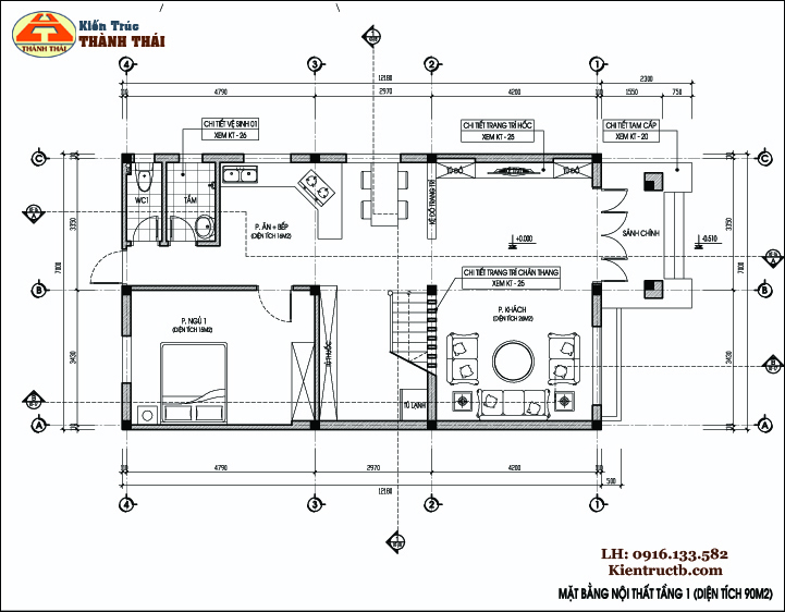
+ tầng 1 bao gồm: 1 phòng ngủ; 1 phòng khách; 1 bếp và 1 khu vệ sinh chung

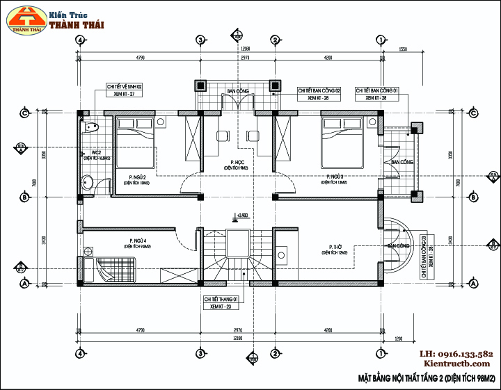
+ tầng 2 bao gồm: 3 phòng ngủ; 1 phòng sinh hoạt chung; 1 phòng thờ và 1 khu vệ sinh chung

– Kiến trúc theo phong cách thiết kế biệt thự 2 tầng tân cổ điển.

2/ Một số hình ảnh về mẫu thiết kế biệt thự 2 tầng tân cổ điển tại Thái Bình.

 

Phối cảnh công trình – góc nhìn 01

Bản vẽ mặt bằng bố trí công năng tầng 1 công trình.

Bản vẽ mặt bằng bố trí công năng tầng 2 công trình.

Bản vẽ mặt đứng chính công trình.

Bản vẽ mặt cắt dọc công trình.

Hình ảnh công trình đang trong giai đoạn thi công – góc 01

Hình ảnh công trình đang trong giai đoạn thi công – góc 02

Hình ảnh công trình đã hoàn thiện.

Hồ sơ thiết kế thi công (có sẵn)

1/ hồ sơ thiết kế kiến trúc bao gồm: phối cảnh ngoại thất công trình; bản vẽ thiết kế kiến trúc; bản vẽ thiết kế kết cấu công trình và bản vẽ thiết kế điện nước công trình.

0916.133.582
icon