Khu dân cư DC1, tổ 4 phường Hoàng Diệu - Tp Thái Bình ( Đối diện cổng đài phát thanh và truyền hình Thái Bình )

Điện thoại: 0916.133.582

Email: kientructhanhthai@gmail.com

X

Mẫu 09 – Nhà vườn 1 tầng mái nhật thiết kế tại Hưng Yên

1/ Giới thiệu về mẫu thiết kế biệt thự nhà vườn 1 tầng

Một ngôi nhà biệt thự vườn của 3 thế hệ cùng sinh sồng với 4 phòng ngủ (trong đó có 1 phòng ngủ khép kín cho ông bà) cùng đầy đủ các không gian phụ trợ như phòng khách, bếp ăn và phòng thờ trang trọng… là niềm mơ ước của đại đa số các gia đình người việt. Tất cả các chức năng đều được gói gọn trong một ngôi nhà với trung tâm là phòng khách và phòng thờ tạo ra sự ấm cúng đầm ấm.

– Địa chỉ xây dựng: tại huyện Kim Động, tỉnh Hưng Yên (theo địa chỉ cũ)

– Diện tích bao che là: 180m2 (kích thước tổng theo hai chiều ngôi nhà là 15,5mx12,5m)

– Tổng diện tích sàn mái xây dựng 205m2

– Số tầng xây dựng công trình: 1 tầng

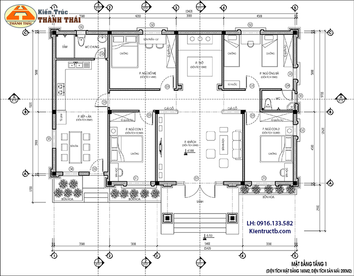
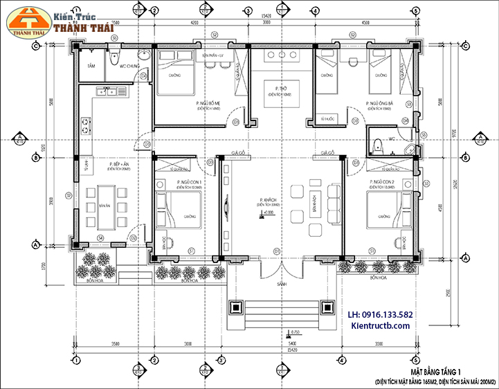
– Công năng tầng 1 bao gồm: 4 phòng ngủ (trong đó có 1 phòng khép kín); 1 phòng thờ; 1 phòng khách; 1 bếp + ăn và 1 khu vệ sinh chung

– Trong khi phòng khách là lõi trung tâm của ngôi nhà thì bếp ăn được đưa gọn vào phía trong và có cửa đóng kín để ngăn mùi. Đây là hai yếu tố chính cần giải quyết cho tính đặc thù của một ngôi nhà ở nông thôn.

2/ Một số hình ảnh về mẫu thiết kế.

Mặt bằng thiết kế tầng 1 ngôi nhà

Mặt đứng chính ngôi nhà

Mặt cắt dọc điển hình ngôi nhà

Hình ảnh 3D phối cảnh ban đêm ngôi nhà

Hình ảnh 3D phối cảnh ban ngày ngôi nhà

Phối cảnh góc nhìn từ trên cao ngôi nhà – góc 01

Phối cảnh góc nhìn từ trên cao ngôi nhà – góc 02

Ngôi nhà đươc thiết kế bởi các kts của văn phòng thiết kế Thành Thái. Công trình hiện đã thi công hoàn thiện và đưa vào sử dụng tại Kim Động, Hưng Yên.

0916.133.582
icon