Khu dân cư DC1, tổ 4 phường Hoàng Diệu - Tp Thái Bình ( Đối diện cổng đài phát thanh và truyền hình Thái Bình )

Điện thoại: 0916.133.582

Email: kientructhanhthai@gmail.com

X

Mẫu 21 – Thiết kế biệt thự 2 tầng mái nhật hiện đại tại Đông Hợp, Đông Hưng

1/ Giới thiệu chung về mẫu thiết kế biệt thự

Đây là mẫu thiết kế biệt thự 2 tầng mái nhật khá phổ biến hiện nay được nhiều gia đình lựa chọn bởi tính ưu việt của nó mang lại. Thiết kế đơn giản, khỏe khoắn nhưng vẫn rất ấn tượng và hiện đại. Mái nhật vừa tạo hình thức vừa là lá chắn ánh nắng mặt trời trực tiếp, làm giảm nhiệt độ gần như tuyệt đối cho không gian sinh hoạt của tầng 2. 

– Địa chỉ xây dựng: tại xã Đông Hợp, huyện Đông Hưng, tỉnh Thái Bình (theo địa chỉ cũ)

– Diện tích xây dựng là: 130m2 (kích thước tổng của nhà là 12,5mx14m)

– Tổng diện tích sàn xây dựng 300m2

– Số tầng xây dựng công trình: 2 tầng + mái nhật

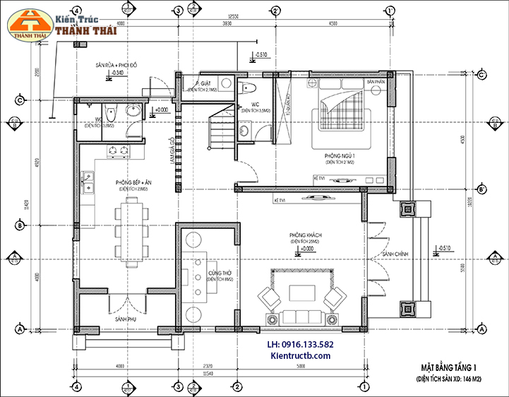
+ tầng 1: gồm 1 phòng khách có diện tích 25m2; 1 phòng thờ hướng thẳng ra khu vực phòng khách có diện tích 8m2; một khu bếp + ăn phía sau có diện tích 23m2; một phòng ngủ rộng có vệ sỉnh khép kín cho ông bà với diện tích 21m2; ngoài ra là các không gian phụ trợ khác của ngôi nhà.

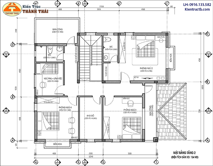
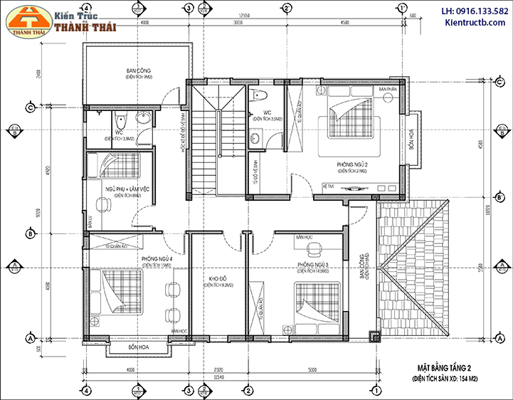
+ tầng 2: gồm 3 phòng ngủ chính (trong đó có 1 phòng khép kín) diện tích từ 15m2 đến 21m2; một phòng ngủ phụ + làm việc có diện tích 8m2; ngoài ra là các không gian phụ trợ khác như vệ sinh, kho đồ, hành lang, ban công…

– Không gian trong ngôi nhà được tổ chức rất hợp lý từ việc sắp xếp được củng thờ liền phòng khách mà không ảnh hưởng đến vấn đề tâm linh, cho đến việc bố trí cửa phụ của khu bếp ra sân sau làm chỗ giặt phơi và gia công. Các không gian đều rất rộng và thông thoáng tạo môi trường trong lành, tiện nghi, rất phù hợp cho một gia đình nhiều thế hệ.

2/ Một số hình ảnh về mẫu thiết kế.

Mặt bằng thiết kế tầng 1 ngôi nhà

Mặt bằng thiết kế tầng 2 ngôi nhà

Mặt đứng chính ngôi nhà

Mặt cắt kỹ thuật điển hình ngôi nhà

Phối cảnh 3D ban đêm ngôi nhà

Phối cảnh 3D hướng chính ngôi nhà

Phối cảnh 3D tổng thể góc 01

Phối cảnh 3D tổng thể góc 02

Văn phòng thiết kế Thành Thái với hơn 10 năm kinh nghiệm trong lĩnh vực tư vấn thiết kế kiến trúc – nội thất – cảnh quan sân vườn luôn là điểm đến tin cậy cho mọi đối tượng khách hàng. Bằng tất cả năng lực, kinh nghiệm và sự tận tâm, chắc chắn chúng tôi sẽ mang đến cho quý khách những không gian sống tiện nghi nhất, hài hòa nhất và thẩm mỹ nhất. Chân thành cảm ơn quý khách hàng đãng tin tưởng và đồng hành cùng chúng tôi.

0916.133.582
icon