Khu dân cư DC1, tổ 4 phường Hoàng Diệu - Tp Thái Bình ( Đối diện cổng đài phát thanh và truyền hình Thái Bình )

Điện thoại: 0916.133.582

Email: kientructhanhthai@gmail.com

X

Mẫu 18-Thiết kế nhà 2 tầng mái nhật tại Quỳnh Phụ, Thái Bình

1/ Giới thiệu chung – mẫu thiết kế nhà đẹp tại Thái Bình

Một công trình được bên thiết kế cũng như chủ nhà tâm đắc. Mặc dù hơi có phần nuối tiếc bởi màu sơn không được như bản thiết kế, tuy nhiên nó vẫn nổi bật lên so với các ngôi nhà lân cận khác bởi những đường nét mới lạ, kiến trúc hài hòa, hiện đại. Dưới đây là một số thông tin về mẫu thiết kế này.

– Địa chỉ xây dựng: tại Đông Hải, Quỳnh Phụ, Thái Bình

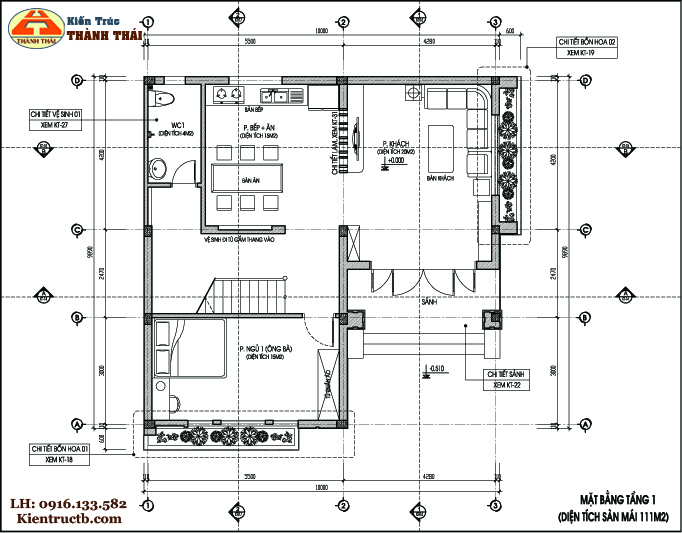
– Diện tích xây dựng là: 111m2 (kích thước tổng của nhà là 11mx11m)

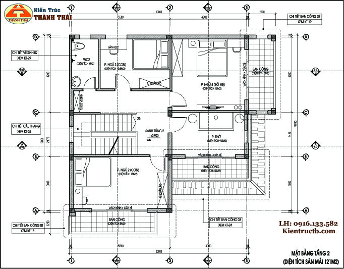
– Tổng diện tích sàn xây dựng 232m2

– Số tầng xây dựng công trình: 2 tầng + mái nhật

+ tầng 1 bao gồm: 1 phòng ngủ cho ông bà; 1 phòng khách; 1 bếp + ăn và 1 khu vệ sinh chung

+ tầng 2 bao gồm: 3 phòng ngủ; 1 phòng thờ; 1 khu vệ sinh chung; ngoài ra là các ban công thoáng.

– Hình thức kiến trúc hiện đại, mới lạ. Nổi bật lên là sự kết hợp hài hòa của hình khối kiến trúc, màu sắc cùng vật liệu hoàn thiện.

2/ Một số hình ảnh về mẫu thiết kế.

Mặt bằng thiết kế tầng 1 công trình

Mặt bằng thiết kế tầng 2 công trình

Bản vẽ mặt bên công trình

Bản vẽ mặt cắt công trình 01

Bản vẽ mặt cắt công trình 02

Hình ảnh phối cảnh tổng thế công trình

Hình ảnh phối cảnh góc công trình 01

Hình ảnh phối cảnh góc công trình 02

Hình ảnh thực tế công trình đang trong giai đoạn hoàn thiện 01

Hình ảnh thực tế công trình đang trong giai đoạn hoàn thiện 02

Hình ảnh thực tế công trình đã hoàn thiện 01

Hình ảnh thực tế công trình đã hoàn thiện 02

hồ sơ thiết kế thi công bao gồm: phối cảnh ngoại thất công trình; bản vẽ thiết kế kiến trúc; bản vẽ thiết kế kết cấu công trình và bản vẽ thiết kế điện nước công trình.

0916.133.582
icon