Khu dân cư DC1, tổ 4 phường Hoàng Diệu - Tp Thái Bình ( Đối diện cổng đài phát thanh và truyền hình Thái Bình )

Điện thoại: 0916.133.582

Email: kientructhanhthai@gmail.com

X

Mẫu 08 – Thiết kế nhà vườn 1 tầng mái nhật, phong cách tân cổ điển

1/ Giới thiệu về mẫu thiết kế nhà vườn 1 tầng

Sự tinh tế trong đường nét và đồ sộ từ hệ thống cột phào là đặc trưng riêng của dạng kiến trúc nhà vườn tân cổ điển. Tuy nhiên để đặt nó vào một khu đất hẹp, không vuông vắn và phải tận dụng được tối đa diện tích đất đòi hỏi kts phải tính toán kỹ lưỡng. Từ việc tổ chức không gian đến tạo hình thức cho ngôi nhà làm sao phải hài hòa mà vẫn nổi bật là một điều không hề đơn giản. Ở công trình này, mọi khó khăn đó đã được giải quyết.

– Địa chỉ xây dựng: tại xã Thanh Tân, huyện Kiến Xương, tỉnh Thái Bình (theo địa chỉ cũ)

– Diện tích bao che là: 140m2 (kích thước tổng theo hai chiều ngôi nhà là 14,5mx13,5m)

– Tổng diện tích sàn mái xây dựng 160m2

– Số tầng xây dựng công trình: 1 tầng

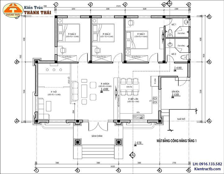
– Công năng tầng 1 bao gồm: 3 phòng ngủ (trong đó có 1 phòng khép kín); 1 phòng thờ; 1 phòng khách; 1 bếp + ăn và 1 khu vệ sinh chung

– Ngoài các phòng ngủ và khu vệ sinh có tường bao che để tạo không gian riêng, các không gian chức năng còn lại như phòng khách, phòng thờ và bếp ăn được ghép chung (sử dụng giá gỗ thoáng để ngăn chia không gian) tạo thành một không gian rộng lớn và thông thoáng khi bước từ sảnh vào nhà.

2/ Một số hình ảnh về mẫu thiết kế biệt thự nhà vườn 1 tầng.

Mặt bằng tổ chức không gian tầng 1 ngôi nhà

Mặt đứng chính ngôi nhà

Mặt cắt dọc điển hình ngôi nhà

Phối cảnh 3D ban đêm ngôi nhà

Phối cảnh 3D ban ngày ngôi nhà

Phối cảnh một góc gần của ngôi nhà

Hình ảnh thực tế ngôi nhà đã hoàn thiện – 01

Hình ảnh thực tế ngôi nhà đã hoàn thiện – 02

Văn phòng thiết kế Thành Thái với hơn 10 năm kinh nghiệm trong lĩnh vực tư vấn thiết kế kiến trúc – nội thất – cảnh quan sân vườn luôn là điểm đến tin cậy cho mọi đối tượng khách hàng. Bằng tất cả năng lực, kinh nghiệm và sự tận tâm, chắc chắn chúng tôi sẽ mang đến cho quý khách những không gian sống tiện nghi nhất, hài hòa nhất và thẩm mỹ nhất. Chân thành cảm ơn quý khách hàng đãng tin tưởng và đồng hành cùng chúng tôi.

0916.133.582
icon