Khu dân cư DC1, tổ 4 phường Hoàng Diệu - Tp Thái Bình ( Đối diện cổng đài phát thanh và truyền hình Thái Bình )

Điện thoại: 0916.133.582

Email: kientructhanhthai@gmail.com

X

Mẫu 07-Thiết kế biệt thự nhà vườn 1 tầng tại Hưng Hà, Thái Bình

1/ Giới thiệu mẫu thiết kế biệt thự nhà vườn 1 tầng tại Thái Bình

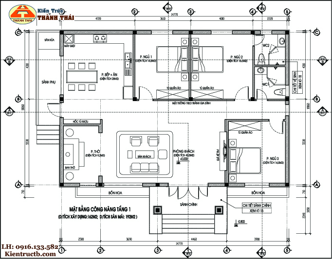
Khu đất xây dựng biệt thự nhà vườn 1 tầng khá rộng nên việc bố trí công năng cho ngôi nhà ở cũng thoải mái hơn với đầy đủ các không gian sinh hoạt gia đình (phòng khách; bếp+ăn; phòng thờ; 4 phòng ngủ và khu vệ sinh chung). Dưới đây là một vài thông tin cơ bản của mẫu nhà vườn 1 tầng.

– Địa chỉ xây dựng: tại Chi Lăng, Hưng Hà, Thái Bình

– Diện tích bao che là: 162m2 (kích thước tổng ngôi nhà là 16mx13m)

– Tổng diện tích sàn mái xây dựng 192m2

– Số tầng xây dựng công trình: 1 tầng

– Công năng tầng 1 bao gồm: 4 phòng ngủ (trong đó có 1 phòng khép kín); 1 phòng thờ; 1 phòng khách; 1 bếp + ăn và 1 khu vệ sinh chung

– Thiết kế theo dạng biệt thự nhà vườn 1 tầng, mái nhật hiện đại. Các cửa sổ + vách kính lớn đặt sát nền nhà tạo góc nhìn lớn quan sát ra xung quanh khuôn viên, tạo ra các không gian mở cực thông thoáng cho ngôi nhà.

2/ Một số hình ảnh về mẫu thiết kế biệt thự nhà vườn 1 tầng.

Mặt bằng thiết kế tầng 1 công trình

Bản vẽ mặt đứng chính công trình

Bản vẽ mặt cắt công trình 01

Bản vẽ mặt cắt công trình 02

Hình ảnh phối cảnh công trình 01

Hình ảnh phối cảnh công trình 02

Hình ảnh phối cảnh công trình 03

Hình ảnh phối cảnh công trình 04

Hình ảnh phối cảnh công trình 05

Hình ảnh phối cảnh công trình 06

Hồ sơ bản vẽ thiết kế thi công (có sẵn)

bao gồm: phối cảnh ngoại thất công trình; bản vẽ thiết kế kiến trúc; bản vẽ thiết kế kết cấu công trình và bản vẽ thiết kế điện nước công trình.

0916.133.582
icon