Khu dân cư DC1, tổ 4 phường Hoàng Diệu - Tp Thái Bình ( Đối diện cổng đài phát thanh và truyền hình Thái Bình )

Điện thoại: 0916.133.582

Email: kientructhanhthai@gmail.com

X

Mẫu 06-thiết kế nhà vườn 1 tầng mái nhật tại Thái Thụy, Thái Bình

1/ Giới thiệu mẫu thiết kế nhà vườn đẹp tại Thái Bình

Vì gia đình đã có công trình phụ (bếp ăn + vệ sinh chung) nên nhu cầu thiết kế nhà vườn 1 tầng chỉ có phòng ngủ, phòng khách và phòng thờ để kết nối với khu phụ tạo thành một tổng thể đẹp. Việc kết nối để tận dụng khu phụ làm giảm diện tích ngôi nhà đồng nghĩa với giảm chi phí thi công. Dưới đây là một vài thông tin của mẫu thiết kế nhà vườn.

– Địa chỉ xây dựng: tại Thụy Thanh, Thái Thụy, Thái Bình

– Diện tích xây dựng là: 143m2 (kích thước tổng ngôi nhà là 13mx13m)

– Tổng diện tích sàn mái xây dựng 168m2

– Số tầng xây dựng công trình: 1 tầng

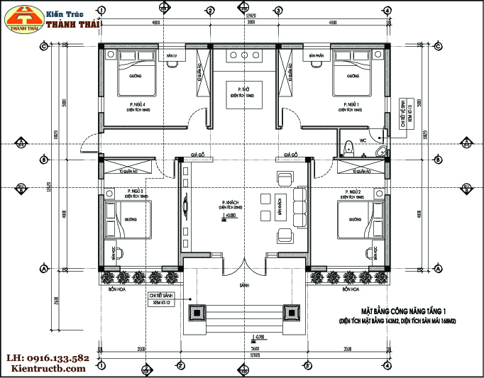
– Công năng tầng 1 bao gồm: 4 phòng ngủ (trong đó có 1 phòng khép kín); 1 phòng thờ và 1 phòng khách.

– Thiết kế theo dạng biệt thự nhà vườn 1 tầng, mái nhật hiện đại.

2/ Một số hình ảnh về mẫu thiết kế nhà vườn.

Mặt bằng thiết kế tầng 1 công trình

Bản vẽ mặt đứng chính công trình

Bản vẽ mặt cắt công trình 01

Bản vẽ mặt cắt công trình 02

Hình ảnh phối cảnh công trình 01

Hình ảnh phối cảnh công trình 02

Hình ảnh phối cảnh công trình 03

Hình ảnh thực tế công trình đang thi công hoàn thiện

Hồ sơ bản vẽ thiết kế thi công (có sẵn)

bao gồm: phối cảnh ngoại thất công trình; bản vẽ thiết kế kiến trúc; bản vẽ thiết kế kết cấu công trình và bản vẽ thiết kế điện nước công trình.

0916.133.582
icon