Tuy chi phí cho việc thiết kế nhà trọn gói có phần hơi cao so với thiết kế riêng từng phần, nhưng hiệu quả của nó mang lại cho ngôi nhà là rất lớn. Nó tạo ra sự đồng bộ và hài hòa từ trong ra ngoài, từ hình thức thẩm mỹ của đồ đạc nội thất đến hình thức thẩm mỹ của ngoại thất bên ngoài công trình. Khi thiết kế đồng bộ, kiến trúc sư sẽ tính toán và bố trí luôn các hốc đặt tủ kệ cũng như trần vách… để trong quá trình thi công, nội thất sẽ được định hình luôn trách việc đập phá hay cải tạo về sau để khớp nối nội thất.
– Địa chỉ xây dựng: tại Quỳnh Thọ, Quỳnh Phụ, Thái Bình
– Diện tích xây dựng là: 152m2 (kích thước tổng của nhà là 12mx12,6m)
– Tổng diện tích sàn xây dựng 280m2
– Số tầng xây dựng công trình: 2 tầng + mái nhật
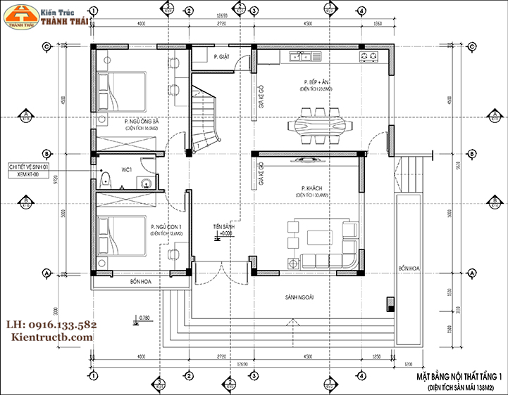
+ tầng 1 bao gồm: hai phòng ngủ có diện tích 12,6m2 và 16,5m2; một phòng khách có diện tích 33,5m2; một bếp + ăn có diện tích 23,5m2 và một khu vệ sinh chung
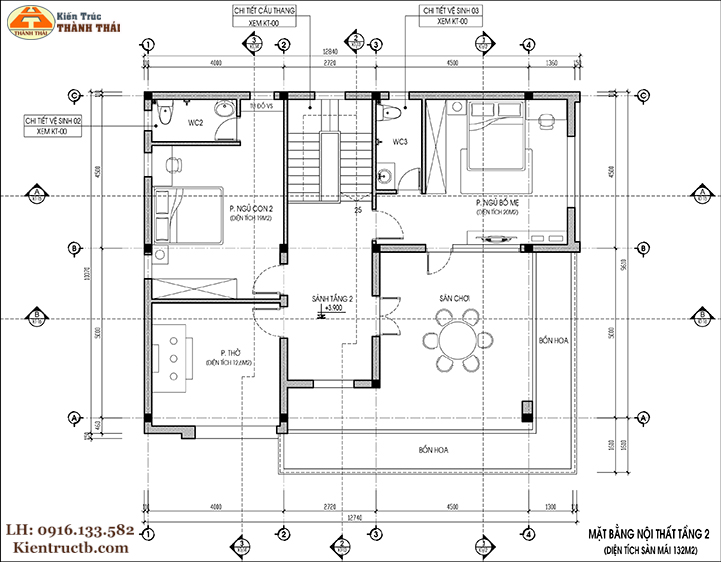
+ tầng 2 bao gồm: hai phòng phòng ngủ khép kín có diện tích lần lượt là 19m2 và 20m2; một phòng thờ; sảnh tầng và một sân chơi rộng phía trước.
– Nhà được thiết kế trọn gói từ kiến trúc bên ngoài đến nội thất bên trong theo phong cách biệt thự nhà vườn hiện đại (các cửa sổ được thiết kế rộng tối đa tạo không gian mở ra khuôn viên xung quanh nhà)
Mặt bằng thiết kế tầng 1 công trình
Mặt bằng thiết kế tầng 2 công trình
Bản vẽ mặt đứng công trình
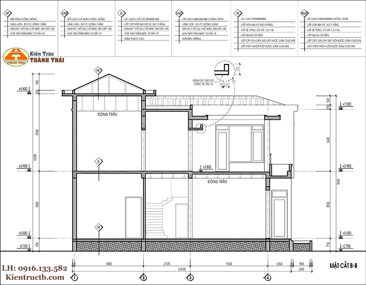
bản vẽ mặt cắt công trình
Phối cảnh góc công trình 01
Phối cảnh góc công trình 02
Phối cảnh góc công trình 03
Phối cảnh góc công trình 04
Phối cảnh góc công trình 05
hình ảnh 3D nội thất phòng khách 01
hình ảnh 3D nội thất phòng khách 02
hình ảnh 3D nội thất phòng bếp ăn 01
hình ảnh 3D nội thất phòng bếp ăn 02
hình ảnh 3D nội thất phòng ngủ master 01
hình ảnh 3D nội thất phòng ngủ master 02
Hình ảnh công trình đang trong giai đoạn hoàn thiện 01
Hình ảnh công trình đang trong giai đoạn hoàn thiện 02
Hình ảnh công trình đã hoàn thiện 01
Hình ảnh công trình đã hoàn thiện 02
Hình ảnh công trình đã hoàn thiện 03
Hình ảnh công trình đã hoàn thiện 04
hồ sơ thiết kế thi công bao gồm: phối cảnh ngoại thất công trình; phối cảnh nội thất trong nhà; bản vẽ chi tiết nội thất; bản vẽ thiết kế kiến trúc; bản vẽ thiết kế kết cấu công trình và bản vẽ thiết kế điện nước công trình.