Khu dân cư DC1, tổ 4 phường Hoàng Diệu - Tp Thái Bình ( Đối diện cổng đài phát thanh và truyền hình Thái Bình )

Điện thoại: 0916.133.582

Email: kientructhanhthai@gmail.com

X

Mẫu 20 – Thiết kế biệt thự tại p. Hoàng Diệu, thành phố Thái Bình

1/ Giới thiệu chung về mẫu thiết kế biệt thự

Đây là mẫu thiết kế biệt thự gồm có 2 tầng nổi và 1 tầng hầm, không gian sinh hoạt đa dạng tiện nghi. Có bể bơi, thang máy trong nhà; xung quanh có khuôn viên sân vườn, ao hồ… Kiến trúc đơn giản, hiện đại phù hợp cho sinh hoạt của mọi gia đình.

– Địa chỉ xây dựng: tại phường Hoàng Diệu, thành phố Thái Bình (nay là phường Trà Lý, tỉnh Hưng Yên)

– Diện tích xây dựng là: 212m2 (kích thước tổng của nhà là 18,5mx11,5m)

– Tổng diện tích sàn xây dựng 560m2

– Số tầng xây dựng công trình: 2 tầng nổi + 1 tầng hầm + mái thái

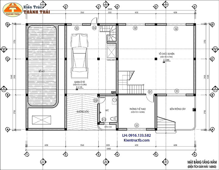
+ tầng hầm bao gồm: một không gian sinh hoạt chung + tổ chức sự kiện diện tích khoảng 60m2; một sân để ô tô + xe máy diện tích 36m2; một phòng tập thể thao diện tích 15m2; ngoài ra là các phòng kỹ thuật cho bể bơi, thang máy, nhà kho…

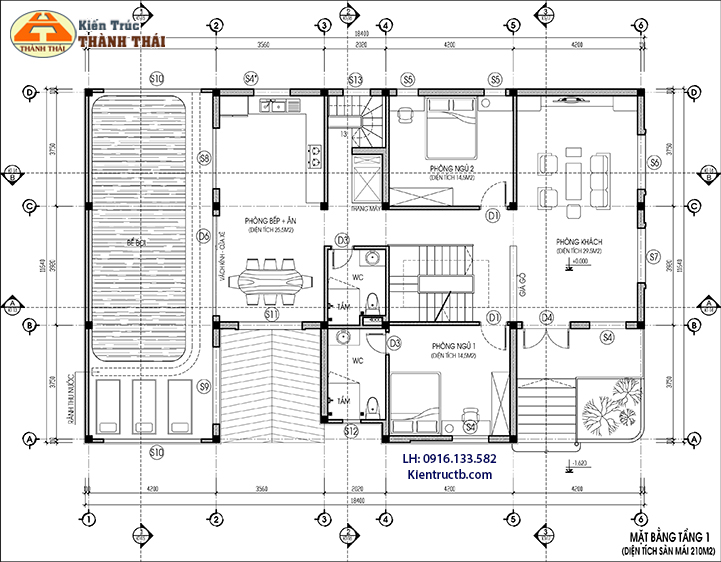
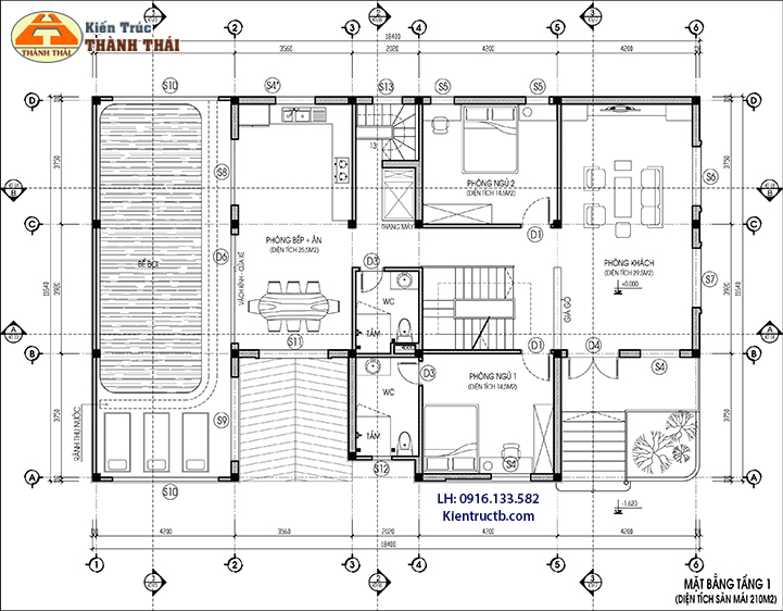
+ tầng 1 bao gồm: một phòng khách có diện tích 30m2; một phòng bếp + ăn diện tích 26m2; khu bể bơi có diện tích 48m2 và 2 phòng ngủ bằng nhau có diện tích 14,5m2; ngoài ra là các không gian phụ trợ khác như vệ sinh, hành lang, cầu thang…

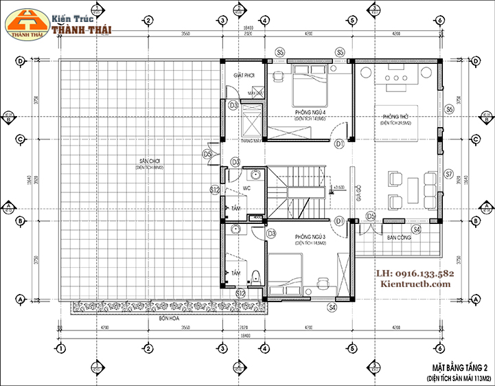
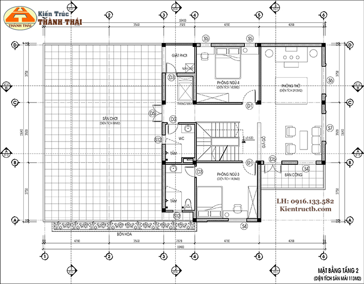
+ tầng 2 bao gồm: một phòng thờ lớn có diện tích 30m2; hai phòng ngủ có diện tích 14,5m2; khu sân chơi + phơi đồ có diện tích 90m2; ngoài ra là các không gian phụ trợ như vệ sinh, thang máy, hành lang…

– Nhà được thiết kế dạng biệt thự mái thái, phong cách đơn giản hiện đại với các không gian mở tạo môi trường thông thoáng, ấn tượng.

2/ Một số hình ảnh về mẫu thiết kế.

Mặt bằng thiết kế tầng hầm công trình

Mặt bằng thiết kế tầng 1 công trình

Mặt bằng thiết kế tầng 2 công trình

Mặt đứng chính công trình

Mặt cắt dọc điển hình công trình

Phối cảnh 3D công trính – góc 01

Phối cảnh 3D công trính – góc 02

Phối cảnh 3D công trính – góc 03

Phối cảnh 3D công trính – góc 04

hồ sơ thiết kế thi công bao gồm: phối cảnh ngoại thất công trình; bản vẽ chi tiết nội thất; bản vẽ thiết kế kiến trúc; bản vẽ thiết kế kết cấu công trình và bản vẽ thiết kế điện nước công trình. Công trình hiện đang được thi công đến giai đoạn hoàn thiện.

0916.133.582
icon