Khu dân cư DC1, tổ 4 phường Hoàng Diệu - Tp Thái Bình ( Đối diện cổng đài phát thanh và truyền hình Thái Bình )

Điện thoại: 0916.133.582

Email: kientructhanhthai@gmail.com

X

Mẫu 17-Biệt thự 2 tầng, tân cổ tại Thái Thụy, Thái Bình

1/ Giới thiệu chung – mẫu thiết kế nhà tân cổ tại Thái Thụy, Thái Bình

Với việc chiều ngang khu đất xây dựng hạn chế (10m) nên phải đẩy sát nhà sang một bên để tạo cho ngôi biệt thự có thêm độ thoáng của 2 mặt tiền. Ngoài ra còn tăng thêm yếu tố thẩm mỹ cho mặt tiền ngôi nhà. Dưới đây là một vài thông tin về mẫu thiết kế biệt thự dạng tân cổ này.

– Địa chỉ xây dựng: tại Thụy Thanh, Thái Thụy, Thái Bình

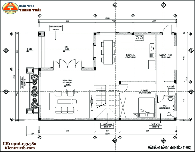
– Diện tích xây dựng là: 119m2 (kích thước tổng của nhà là 9mx15m)

– Tổng diện tích sàn xây dựng 224m2

– Số tầng xây dựng công trình: 2 tầng + mái nhật

+ tầng 1 bao gồm: 1 phòng ngủ; 1 phòng khách; 1 bếp + ăn và 1 khu vệ sinh chung

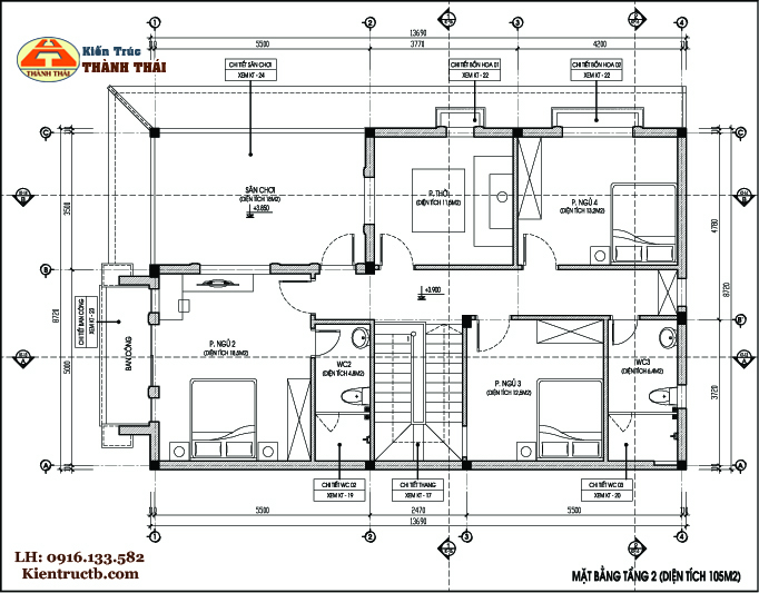
+ tầng 2 bao gồm: 3 phòng ngủ (trong đó có 1 phòng khép kín); 1 phòng thờ; 1 sân chơi rộng và 1 khu vệ sinh chung.

– Biệt thự được thiết kế 2 tầng mái nhật, kiến trúc đơn giản thêm chút phào chỉ của tân cổ điển tạo sự mới lạ, thanh nhã.

2/ Một số hình ảnh về mẫu thiết kế.

Mặt bằng thiết kế tầng 1 công trình

Mặt bằng thiết kế tầng 2 công trình

Bản vẽ mặt đứng chính công trình

Bản vẽ mặt cắt công trình

Hình ảnh phối cảnh công trình 01

Hình ảnh phối cảnh công trình 02

Hình ảnh phối cảnh công trình 03

Hình ảnh phối cảnh công trình 04

Hình ảnh thực tế công trình đã hoàn thiện 01

Hình ảnh thực tế công trình đã hoàn thiện 02

Hình ảnh thực tế công trình đã hoàn thiện 03

hồ sơ thiết kế thi công bao gồm: phối cảnh ngoại thất công trình; bản vẽ thiết kế kiến trúc; bản vẽ thiết kế kết cấu công trình và bản vẽ thiết kế điện nước công trình.

0916.133.582
icon