Cũng là mái chéo lợp ngói, nhưng không như mái nhật hay mái thái, Mái lệch đã phá vỡ sự cân đối của các diện mái để tạo ra một nết khác biệt. Chính điều đó đã tạo cho công trình vẻ cá tính và ấn tượng hơn. Dưới đây là một vài thông tin cơ bản về mẫu thiết kế biệt thự 2 tầng mái lệch tại Thái Bình.
– Địa chỉ xây dựng: tại Tây Đô, Hưng Hà, Thái Bình
– Diện tích xây dựng là: 115m2 (kích thước đất xây dựng tối thiểu là 15mx8,8m)
– Tổng diện tích sàn xây dựng 310m2
– Số tầng xây dựng công trình: 2 tầng + tum mái
+ tầng 1 bao gồm: 1 phòng ngủ khép kín; 1 phòng khách; 1 bếp + ăn và 1 khu vệ sinh chung
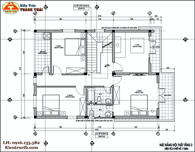
+ tầng 2 bao gồm: 3 phòng ngủ (trong đó có 1 phòng khép kín); 1 phòng thờ và khu vệ sinh chung
+ tầng tum bao gồm: 1 phòng giải trí (hoặc thể thao) và 1 sân chơi (uống trà)
– Kiến trúc theo phong cách thiết kế biệt thự dạng mái lệch hiện đại.
Ảnh phối cảnh 3D công trình – góc nhìn 01
Bản vẽ mặt bằng bố trí công năng tầng 1 công trình
Bản vẽ mặt bằng bố trí công năng tầng 2 công trình
Bản vẽ mặt bằng bố trí công năng tầng tum công trình
Bản vẽ mặt cắt dọc công trình
Ảnh phối cảnh 3D công trình – góc nhìn 02
Ảnh phối cảnh 3D công trình – góc nhìn 03
Hình ảnh công trình đang trong giai đoạn hoàn thiện
Hình ảnh ngoại thất công trình đã thiện
Hình ảnh nội thất công trình đã thiện – 01
Hình ảnh nội thất công trình đã thiện – 02
Công trình hiện đã hoàn thành và đưa vào sử dụng.
hồ sơ thiết kế thi công bao gồm: phối cảnh ngoại thất công trình; bản vẽ thiết kế kiến trúc; bản vẽ thiết kế kết cấu công trình và bản vẽ thiết kế điện nước công trình.