Đây là mẫu nhà đang được rất nhiều người ưa chuộng bởi lối kiến trúc đơn giản, nhẹ nhàng nhưng cũng không kém phần ấn tượng, với đặc trưng nổi bật là phần mái nhật (với 4 diện mái) tạo nên vẻ cân đối, vững chắc. Ngoài ra dạng nhà này còn có ưu điểm là thi công nhanh, đơn giản và độ an toàn cao. Dưới đây là một vài thông tin cơ bản về mẫu biệt thự mái nhật 2 tầng tại Thái Bình.
– Địa chỉ xây dựng: tại Đông Quang, Đông Hưng, Thái Bình
– Diện tích xây dựng là: 118m2 (kích thước đất xây dựng tối thiểu là 12mx11,5m)
– Tổng diện tích sàn xây dựng 235m2
– Số tầng xây dựng công trình: 2 tầng + mái nhật
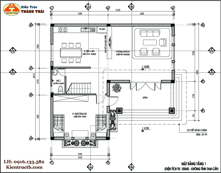
+ tầng 1 bao gồm: 1 phòng ngủ; 1 phòng khách; 1 bếp + ăn và 1 khu vệ sinh chung
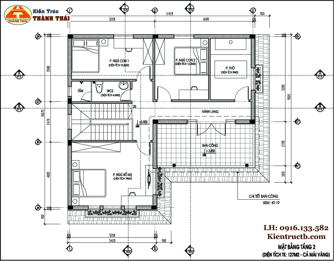
+ tầng 2 bao gồm: 3 phòng ngủ; 1 phòng thờ và khu vệ sinh chung
– Kiến trúc theo phong cách thiết kế biệt thự mái nhật hiện đại.
Ảnh phối cảnh 3D công trình – góc nhìn 01
Bản vẽ mặt bằng bố trí công năng tầng 1 công trình
Bản vẽ mặt bằng bố trí công năng tầng 2 công trình
Bản vẽ mặt đứng công trình
Bản vẽ mặt cắt ngang công trình
Ảnh phối cảnh 3D công trình – góc nhìn 02
Ảnh phối cảnh 3D công trình – góc nhìn 03
Ảnh phối cảnh 3D công trình – góc nhìn 04
Hình ảnh thực tế – công trình đang hoàn thiện
Hình ảnh thực tế – công trình đã hoàn thiện 01
Hình ảnh thực tế – công trình đã hoàn thiện 02
Hình ảnh thực tế – công trình đã hoàn thiện 03
Công trình hiện đang trong giai đoạn hoàn thiện
hồ sơ thiết kế thi công (có sẵn) bao gồm: phối cảnh ngoại thất công trình; bản vẽ thiết kế kiến trúc; bản vẽ thiết kế kết cấu công trình và bản vẽ thiết kế điện nước công trình.