Khu dân cư DC1, tổ 4 phường Hoàng Diệu - Tp Thái Bình ( Đối diện cổng đài phát thanh và truyền hình Thái Bình )

Điện thoại: 0916.133.582

Email: kientructhanhthai@gmail.com

X

Mẫu 10 – biệt thự 2 tầng tại Quỳnh Phụ, Thái Bình

1/ Giới thiệu về mẫu biệt thự 2 tầng.

Đây là một trong những mẫu thiết kế nhà được khá nhiều khách hàng tại Thái Bình yêu thích bởi lối kiến trúc nhẹ nhàng, không gian sinh hoạt vừa phải, tiết kiệm diện tích và chi phí không quá cao. Dưới đây là một vài thông tin về mẫu thiết kế nhà ở.

– Địa chỉ xây dựng: tại An Quý, Quỳnh Phụ, Thái Bình

– Diện tích xây dựng là: 105m2 (kích thước đất xây dựng tối thiểu là 12mx10,5m)

– Tổng diện tích sàn xây dựng 200m2

– Số tầng xây dựng công trình: 2 tầng + mái nhật

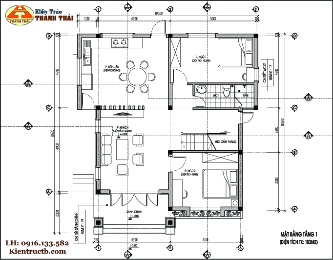
+ tầng 1 bao gồm: 2 phòng ngủ; 1 phòng khách; 1 bếp + ăn và 1 khu vệ sinh chung

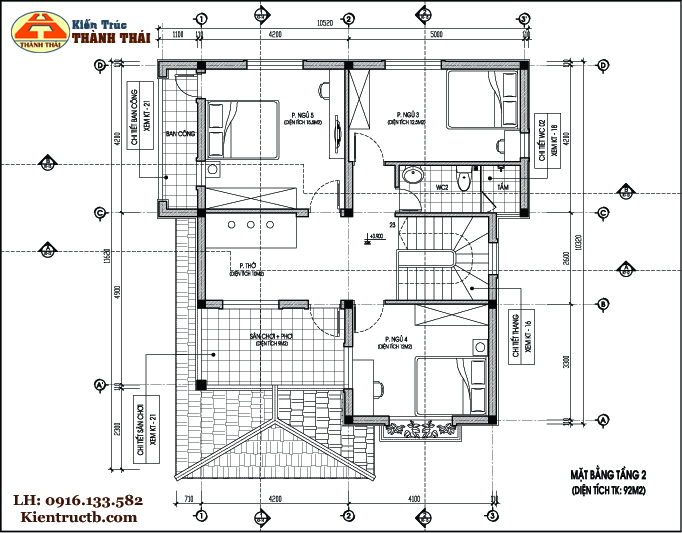
+ tầng 2 bao gồm: 3 phòng ngủ; 1 phòng thờ và khu vệ sinh chung

– Kiến trúc theo phong cách thiết kế biệt thự mái nhật hiện đại.

2/ Một số hình ảnh về mẫu thiết kế nhà tại Thái Bình

Phối cảnh 3D ngoại thất công trình – góc nhìn 01

Bản vẽ mặt bằng bố trí công năng tầng 1 công trình

Bản vẽ mặt bằng bố trí công năng tầng 2 công trình

Bản vẽ mặt đứng chính công trình

Bản vẽ mặt cắt dọc công trình

Phối cảnh 3D ngoại thất công trình – góc nhìn 02

Phối cảnh 3D ngoại thất công trình – góc nhìn 03

Phối cảnh 3D ngoại thất công trình – góc nhìn 04

Hình ảnh công trình đã hoàn thiện – 01

Hình ảnh công trình đã hoàn thiện – 02

Hình ảnh công trình đã hoàn thiện – 03

hồ sơ thiết kế thi công (có sẵn) bao gồm: phối cảnh ngoại thất công trình; bản vẽ thiết kế kiến trúc; bản vẽ thiết kế kết cấu công trình và bản vẽ thiết kế điện nước công trình.

 

0916.133.582
icon