Khu dân cư DC1, tổ 4 phường Hoàng Diệu - Tp Thái Bình ( Đối diện cổng đài phát thanh và truyền hình Thái Bình )

Điện thoại: 0916.133.582

Email: kientructhanhthai@gmail.com

X

Mẫu 11 – Thiết kế nhà 2 tầng mái bằng tại Vũ Thư, Thái Bình

1/ Giới thiệu về mẫu thiết kế biệt thự 2 tầng mái bằng.

Đây là mẫu thiết kế dạng biệt thự 2 tầng mái bằng cho khách hàng tại Vũ Thư, Thái Bình. Một gia đình nhỏ gồm 4 người, với mong muốn một ngôi nhà không cần quá rộng nhưng đầy đủ tiện nghi và mức độ đầu tư vừa phải.

– Địa chỉ xây dựng: tại Hồng Phong, Vũ Thư, Thái Bình

– Diện tích xây dựng là: 89m2 (kích thước tổng của nhà là 10,5mx9m)

– Tổng diện tích sàn xây dựng 170m2

– Số tầng xây dựng công trình: 2 tầng + mái tôn chống nóng

+ tầng 1 bao gồm: 1 phòng ngủ; 1 phòng khách; 1 bếp + ăn và 1 khu vệ sinh chung

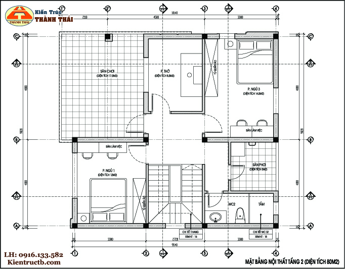
+ tầng 2 bao gồm: 2 phòng ngủ; 1 phòng thờ; sân phơi phía sau, sân chơi phía trước và khu vệ sinh chung

– Kiến trúc theo phong cách thiết kế biệt thự mái bằng hiện đại.

2/ Một số hình ảnh về mẫu thiết kế biệt thự 2 tầng mái bằng tại Thái Bình

Mặt bằng thiết kế tầng 1

Mặt bằng thiết kế tầng 2

Mặt bên công trình

Mặt cắt công trình

Hình ảnh phối cảnh công trình 01

Hình ảnh phối cảnh công trình 02

Hình ảnh phối cảnh công trình 03

 

Công trình hiện đang trong giai đoạn hoàn thiện

hồ sơ thiết kế thi công (có sẵn) bao gồm: phối cảnh ngoại thất công trình; bản vẽ thiết kế kiến trúc; bản vẽ thiết kế kết cấu công trình và bản vẽ thiết kế điện nước công trình.

 

0916.133.582
icon