Khu dân cư DC1, tổ 4 phường Hoàng Diệu - Tp Thái Bình ( Đối diện cổng đài phát thanh và truyền hình Thái Bình )

Điện thoại: 0916.133.582

Email: kientructhanhthai@gmail.com

X

Mẫu 12 – Biệt thự 2 tầng mái nhật tại Quỳnh Phụ, Thái Bình

1/ Giới thiệu chung (mẫu thiết kế nhà đẹp tại Thái Bình)

Là một thiết kế nhà được đánh giá là đẹp, hiện đại, bố trí công năng hài hòa, phù hợp với nhu cầu sử dụng của nhiều gia đình. Hình thức kiến trúc đơn giản, khỏe khoắn, kết hợp với mái nhật tạo sự hài hòa, cân đối. Dưới đây là một vài thông tin về mẫu thiết kế nhà đẹp tại Quỳnh phụ, Thái Bình.

– Địa chỉ xây dựng: tại An Hiệp, Quỳnh Phụ, Thái Bình

– Diện tích xây dựng là: 112m2 (kích thước tổng của nhà là 13,5mx11m)

– Tổng diện tích sàn xây dựng 202m2

– Số tầng xây dựng công trình: 2 tầng + mái nhật (4 mái)

+ tầng 1 bao gồm: 1 phòng ngủ khép kín; 1 phòng khách + phòng thờ; 1 bếp + ăn và 1 khu vệ sinh chung

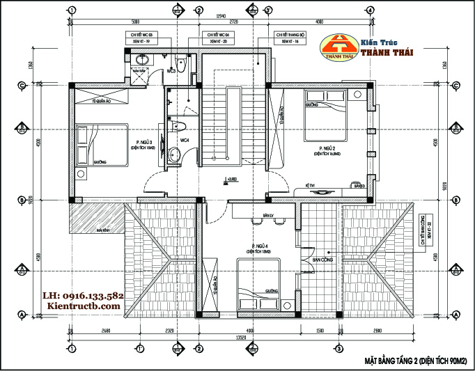
+ tầng 2 bao gồm: 3 phòng ngủ (trong đó có 1 phòng ngủ khép kín); sân chơi phía trước và 1 khu vệ sinh chung.

– Kiến trúc theo phong cách thiết kế biệt thự bốn mái hiện đại.

2/ Một số hình ảnh về mẫu thiết kế.

Mặt bằng tầng 1 công trình

Mặt bằng tầng 2 công trình

Mặt đứng chính công trình

Mặt cắt ngang công trình

Hình ảnh phối cảnh công trình 01

Hình ảnh phối cảnh công trình 02

Hình ảnh phối cảnh công trình 03

Hình ảnh phối cảnh công trình 04

Hình ảnh phối cảnh công trình 05

 

hồ sơ thiết kế thi công có sẵn bao gồm: phối cảnh ngoại thất công trình; bản vẽ thiết kế kiến trúc; bản vẽ thiết kế kết cấu công trình và bản vẽ thiết kế điện nước công trình.

0916.133.582
icon