Đây là một trong những mẫu biệt thự đẹp được nhiều gia đình lựa chọn trong năm 2023. Mẫu được thiết kế và thi công tại Quỳnh phụ, Thái Bình. Dưới đây là một vài thông tin cơ bản về mẫu thiết kế.
– Địa chỉ xây dựng: tại Quỳnh Minh, Quỳnh Phụ, Thái Bình
– Diện tích xây dựng là: 119m2 (kích thước tổng của nhà là 12,5mx13,7m)
– Tổng diện tích sàn xây dựng 219m2
– Số tầng xây dựng công trình: 2 tầng + mái nhật (4 mái)
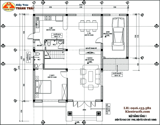
+ tầng 1 bao gồm: 1 phòng ngủ khép kín; 1 phòng khách; 1 bếp + ăn; gara ô tô và 1 khu vệ sinh chung
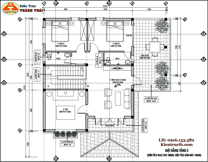
+ tầng 2 bao gồm: 2 phòng ngủ (trong đó có 1 phòng ngủ khép kín); 1 phòng thờ; 1 phòng sinh hoạt chung; 1 khoảng sân chơi rộng và 1 khu vệ sinh chung.
– Phong cách kiến trúc hiện đại mái nhật
Mặt bằng thiết kế tầng 1 công trình
Mặt bằng thiết kế tầng 2 công trình
Mặt đứng chính công trình
Bản vẽ mặt cắt công trình 01
Bản vẽ mặt cắt công trình 02
Hình ảnh phối cảnh công trình 01
Hình ảnh phối cảnh công trình 02
Hình ảnh phối cảnh công trình 03
Hình ảnh phối cảnh công trình 04
hồ sơ thiết kế thi công có sẵn bao gồm: phối cảnh ngoại thất công trình; bản vẽ thiết kế kiến trúc; bản vẽ thiết kế kết cấu công trình và bản vẽ thiết kế điện nước công trình.