Năm 2023 là một năm nổi chội của mẫu nhà biệt thự mái nhật. Rất nhiều gia đình đã lựa chọn mẫu nhà đẹp này bởi nhiều yếu tố, nhưng quan trọng nhất vẫn là 3 yếu tố đó là kiểu dáng kiến trúc hài hòa; tiết kiệm chi phí cho thi công phần mái và thi công nhanh, không phức tạp như thi công dạng nhà mái Thái truyền thống.
– Địa chỉ xây dựng: tại Thống Nhất, Hưng Hà, Thái Bình
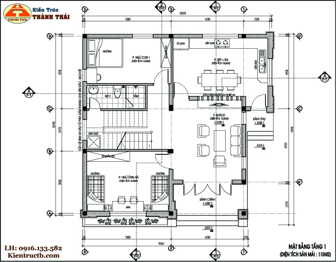
– Diện tích xây dựng là: 115m2 (kích thước tổng của nhà là 11mx11m)
– Tổng diện tích sàn xây dựng 242m2
– Số tầng xây dựng công trình: 2 tầng + mái nhật (4 mái)
+ tầng 1 bao gồm: 2 phòng ngủ (trong đó có 1 phòng ngủ rộng cho ông bà); 1 phòng khách; 1 bếp + ăn và 1 khu vệ sinh chung
+ tầng 2 bao gồm: 3 phòng ngủ; 1 phòng thờ và 1 khu vệ sinh chung.
– Thiết kế theo dạng biệt thự 2 tầng mái nhật hiện đại
Mặt bằng thiết kế tầng 1 công trình
Mặt bằng thiết kế tầng 2 công trình
Bản vẽ mặt đứng chính công trình
Bản vẽ mặt cắt dọc công trình
Hình ảnh phối cảnh công trình 01
Hình ảnh phối cảnh công trình 02
Hình ảnh phối cảnh công trình 03
Hình ảnh phối cảnh công trình 04
Hình ảnh thực tế khi công trình đã hoàn thiện 01
Hình ảnh thực tế khi công trình đã hoàn thiện 02
hồ sơ thiết kế thi công bao gồm: phối cảnh ngoại thất công trình; bản vẽ thiết kế kiến trúc; bản vẽ thiết kế kết cấu công trình và bản vẽ thiết kế điện nước công trình.