Khu dân cư DC1, tổ 4 phường Hoàng Diệu - Tp Thái Bình ( Đối diện cổng đài phát thanh và truyền hình Thái Bình )

Điện thoại: 0916.133.582

Email: kientructhanhthai@gmail.com

X

Mẫu 15-Mẫu biệt thự mái Thái đẹp tại Thái Bình

1/ Giới thiệu chung mẫu nhà mái Thái đẹp.

Vẫn là dạng nhà biệt thự 2 tầng mái Thái nhưng chủ nhà cần một hình thức mới lạ hơn, độc đáo hơn nhưng vẫn phải đảm bảo được sự hài hòa. Thiết kế nhà đẹp vừa giữ được chất nhà truyền thống, vừa cách điệu để tạo ra cái mới trong cái cũ là điều không dễ dàng. Dưới đây là một vài thông tin cho mẫu thiết kế nhà tại Vũ Thư, Thái Bình.

– Địa chỉ xây dựng: tại Xuân Hòa, Vũ Thư, Thái Bình

– Diện tích xây dựng là: 100m2 (kích thước tổng của nhà là 12mx9m)

– Tổng diện tích sàn xây dựng 202m2

– Số tầng xây dựng công trình: 2 tầng + mái Thái

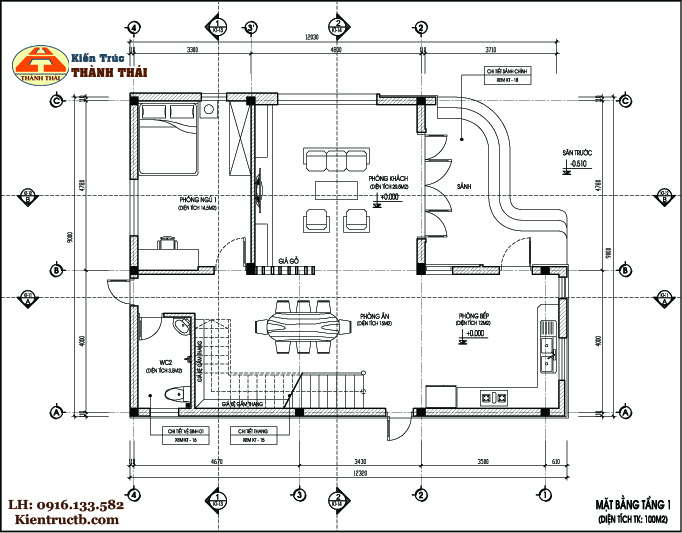
+ tầng 1 bao gồm: 1 phòng ngủ cho người già; 1 phòng khách; 1 bếp + ăn và 1 khu vệ sinh chung

+ tầng 2 bao gồm: 2 phòng ngủ; 1 phòng sinh hoạt chung; 1 phòng thờ và 1 khu vệ sinh chung.

– Thiết kế theo dạng biệt thự 2 tầng mái Thái với kiểu dáng mới lạ, cá tính.

2/ Một số hình ảnh về mẫu thiết kế nhà đẹp tại Vũ Thư, Thái Bình.

Mặt bằng thiết kế tầng 1 công trình

Mặt bằng thiết kế tầng 2 công trình

Bản vẽ mặt bên công trình

Bản vẽ mặt cắt dọc công trình

Hình ảnh phối cảnh công trình 01

Hình ảnh phối cảnh công trình 02

Hình ảnh nội thất thực tế khi công trình đã hoàn thiện 01 

Hình ảnh nội thất thực tế khi công trình đã hoàn thiện 02

Hình ảnh nội thất thực tế khi công trình đã hoàn thiện 03

 

hồ sơ thiết kế thi công bao gồm: phối cảnh ngoại thất công trình; bản vẽ thiết kế kiến trúc; bản vẽ thiết kế kết cấu công trình và bản vẽ thiết kế điện nước công trình.

0916.133.582
icon