Khu dân cư DC1, tổ 4 phường Hoàng Diệu - Tp Thái Bình ( Đối diện cổng đài phát thanh và truyền hình Thái Bình )

Điện thoại: 0916.133.582

Email: kientructhanhthai@gmail.com

X

Mẫu 16-Mẫu thiết kế nhà tại Đông Hưng, Thái Bình

1/ Giới thiệu chung mẫu thiết kế nhà cho khách hàng ở Đông Hưng, Thái Bình

Vẫn là một mẫu thiết kế nhà ở dạng biệt thự 2 tầng mái nhật với phong cách hiện đại, hình thức đẹp, đơn giản; công năng phù hợp với 4 phòng ngủ (trong đó có 1 phòng ngủ khép kín). Khu bếp tách biệt tránh mùi sang các không gian khác trong nhà. Dưới đây là một vài thông tin về mẫu thiết kế tại Đông Hưng, Thái Bình.

– Địa chỉ xây dựng: tại Đông Quang, Đông Hưng, Thái Bình

– Diện tích xây dựng là: 122m2 (kích thước tổng của nhà là 12mx12,6m)

– Tổng diện tích sàn xây dựng 248m2

– Số tầng xây dựng công trình: 2 tầng + mái Thái

+ tầng 1 bao gồm: 1 phòng ngủ; 1 phòng khách; 1 bếp + ăn và 1 khu vệ sinh chung

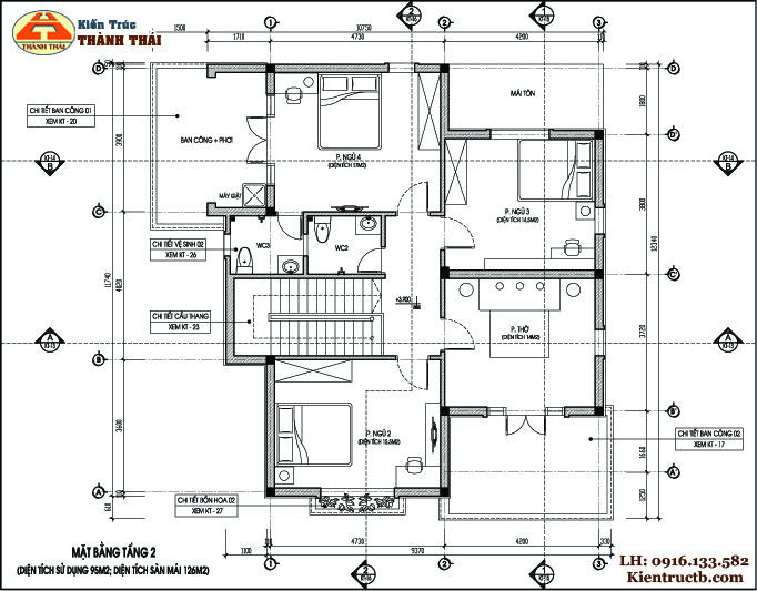
+ tầng 2 bao gồm: 3 phòng ngủ (trong đó có 1 phòng khép kín); 1 phòng thờ; 2 ban công rộng và 1 khu vệ sinh chung.

– Thiết kế theo dạng biệt thự 2 tầng mái nhật hiện đại.

2/ Một số hình ảnh về mẫu thiết kế nhà đẹp ở Đông Hưng, Thái Bình.

Mặt bằng thiết kế tầng 1 công trình

Mặt bằng thiết kế tầng 2 công trình

Bản vẽ mặt đứng chính công trình

Bản vẽ mặt cắt công trình 01

Bản vẽ mặt cắt công trình 02

Hình ảnh phối cảnh công trình 01

Hình ảnh phối cảnh công trình 02

Hình ảnh phối cảnh công trình 03

Hình ảnh phối cảnh công trình 04

Hình ảnh công trình đang trong giai đoạn hoàn thiện 01

Hình ảnh công trình đang trong giai đoạn hoàn thiện 02

hồ sơ thiết kế thi công bao gồm: phối cảnh ngoại thất công trình; bản vẽ thiết kế kiến trúc; bản vẽ thiết kế kết cấu công trình và bản vẽ thiết kế điện nước công trình.

0916.133.582
icon