Khu dân cư DC1, tổ 4 phường Hoàng Diệu - Tp Thái Bình ( Đối diện cổng đài phát thanh và truyền hình Thái Bình )

Điện thoại: 0916.133.582

Email: kientructhanhthai@gmail.com

X

Mẫu 04 – Biệt thự 3 tầng tại Quỳnh Phụ, Thái Bình.

1/ Giới thiệu mẫu thiết kế biệt thự 3 tầng tại Quỳnh Phụ, Thái Bình

Vì muốn công trình mới nằm trọn vẹn trên nền móng của ngôi nhà cũ, ngoài ra chủ nhà còn muốn nó có một ngôi nhà mới bề thế, sang trọng, nên đã quyết định thiết kế biệt thự 3 tầng. Dưới đây là những thông tin cơ bản về mẫu thiết kế:

– Địa chỉ xây dựng: tại Quỳnh Minh, Quỳnh Phụ, Thái Bình

– Diện tích xây dựng là: 90m2 (kích thước đất xây dựng tối thiểu là 11,5mx9m)

– Tổng diện tích sàn xây dựng 230m2

– Số tầng xây dựng công trình: 3 tầng + mái nhật

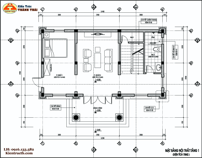
+ tầng 1 bao gồm: 1 phòng ngủ; 1 phòng khách và 1 khu vệ sinh chung

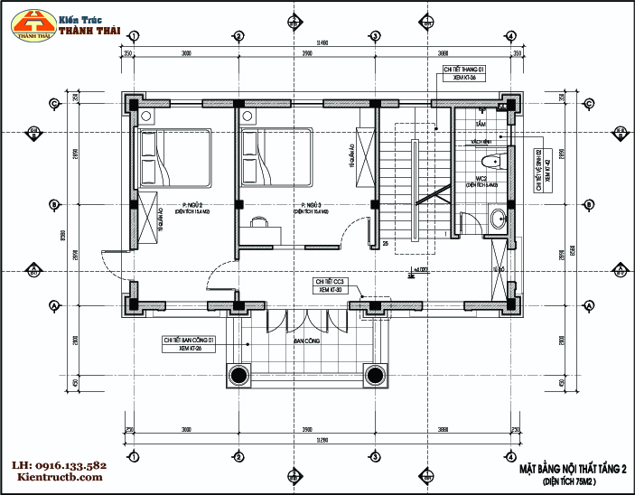
+ tầng 2 bao gồm: 2 phòng ngủ; thang + ban công và 1 khu vệ sinh chung.

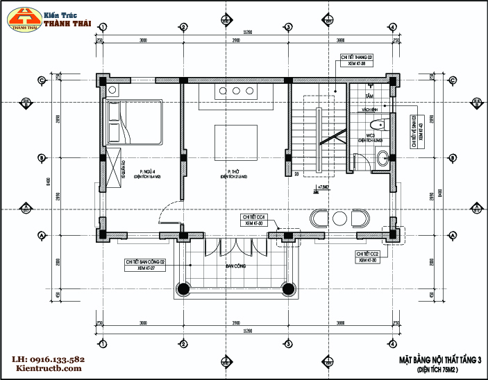
+ tầng 3 bao gồm: 1 phòng ngủ; 1 phòng thờ; thang + ban công và 1 khu vệ sinh chung.

– Kiến trúc theo phong cách thiết kế biệt thự 3 tầng tân cổ điển mái nhật.

2/ Một số hình ảnh về mẫu thiết kế biệt thự 3 tầng tân cổ điển – mái nhật.

Phối cảnh 3D công trình – góc nhìn 01.

Bản vẽ mặt bằng công năng tầng 1 công trình.

Bản vẽ mặt bằng công năng tầng 2 công trình.

Bản vẽ mặt bằng công năng tầng 3 công trình.

Bản vẽ mặt đứng chính công trình.

Phối cảnh 3D công trình – góc nhìn 02.

Phối cảnh 3D công trình – góc nhìn 03.

Thiết kế biệt thự 3 tầng tại Quỳnh phụ, Thái Bình – hình ảnh thực tế công trình 01

hình ảnh thực tế công trình 02

Hồ sơ thiết kế thi công (có sẵn)

1/ hồ sơ thiết kế kiến trúc bao gồm: phối cảnh ngoại thất công trình; bản vẽ thiết kế kiến trúc; bản vẽ thiết kế kết cấu công trình và bản vẽ thiết kế điện nước công trình.

0916.133.582
icon