Khu dân cư DC1, tổ 4 phường Hoàng Diệu - Tp Thái Bình ( Đối diện cổng đài phát thanh và truyền hình Thái Bình )

Điện thoại: 0916.133.582

Email: kientructhanhthai@gmail.com

X

Mẫu 05 – Thiết kế biệt thự 2 tầng tại Vũ Thư, Thái Bình

1/ Giới thiệu mẫu biệt thự 2 tầng mái thái tại Thái Bình

Biệt thự 2 tầng mái thái hiện vẫn là xu hướng thiết kế thịnh hành bởi ngoài yếu tố về mặt thẩm mỹ thì nó còn mang yếu tố truyền thống. Dưới đây là những thông tin chính về mẫu thiết kế tại Thái Bình:

– Địa chỉ xây dựng: tại Việt Thuận, Vũ Thư, Thái Bình

– Diện tích xây dựng là: 128m2 (kích thước đất xây dựng tối thiểu là 16mx8,2m)

– Tổng diện tích sàn xây dựng 235m2

– Số tầng xây dựng công trình: 2 tầng + mái thái

+ tầng 1 bao gồm: 2 phòng ngủ; 1 phòng khách; 1 bếp + ăn và 1 khu vệ sinh chung

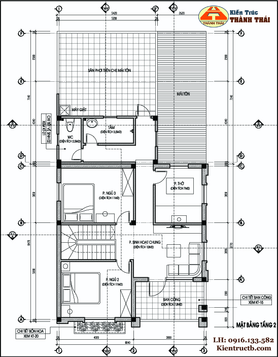
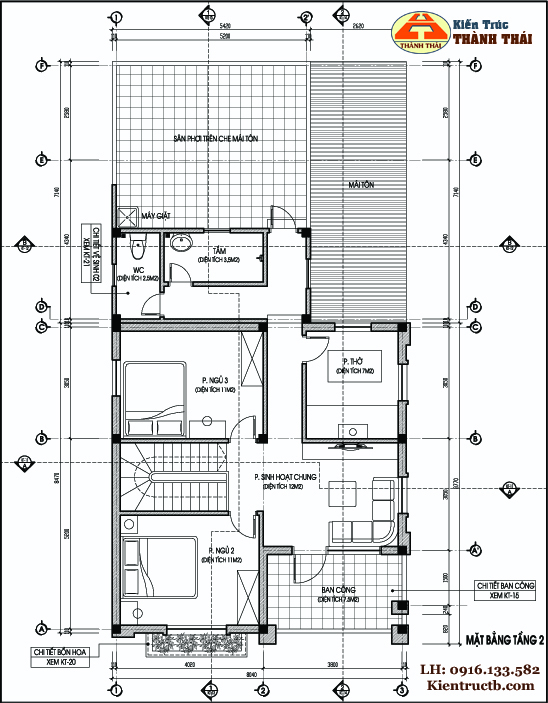
+ tầng 2 bao gồm: 2 phòng ngủ; 1 phòng sinh hoạt chung; 1 phòng thờ và 1 khu vệ sinh chung + sân phơi

– Kiến trúc theo phong cách thiết kế biệt thự 2 tầng mái thái hiện đại.

2/ Một số hình ảnh về mẫu thiết kế biệt thự 2 tầng mái thái hiện đại.

Phối cảnh 3D công trình – góc nhìn 01

Bản vẽ mặt bằng bố trí công năng tầng 1

Bản vẽ mặt bằng bố trí công năng tầng 2

Bản vẽ mặt đứng bên công trình

Bản vẽ mặt cắt dọc công trình

Phối cảnh 3D công trình – góc nhìn 02

Phối cảnh 3D công trình – góc nhìn 03

Hình ảnh thực tế – biệt thự 2 tầng mái thái tại thái bình

Hồ sơ thiết kế thi công (có sẵn)

hồ sơ thiết kế kiến trúc bao gồm: phối cảnh ngoại thất công trình; bản vẽ thiết kế kiến trúc; bản vẽ thiết kế kết cấu công trình và bản vẽ thiết kế điện nước công trình.

 

0916.133.582
icon