Khu dân cư DC1, tổ 4 phường Hoàng Diệu - Tp Thái Bình ( Đối diện cổng đài phát thanh và truyền hình Thái Bình )

Điện thoại: 0916.133.582

Email: kientructhanhthai@gmail.com

X

Mẫu 06 – Thiết kế biệt thự pháp 2 tầng tại Đông Hưng

1/ Giới thiệu mẫu biệt thự pháp 2 tầng mái thái tại Thái Bình

Song song với sự phát triển của kiến trúc hiện đại thì dạng biệt thự pháp hay còn gọi là biệt thự cổ điển vẫn được nhiều người yêu thích bởi hình thức chắc khỏe, bề thế và độ tinh xảo cao trong các đường nét phào chỉ… Dưới đây là những thông tin cơ bản về mẫu thiết kế biệt thự pháp 2 tầng tại Thái Bình.

– Địa chỉ xây dựng: tại Hồng Giang, Đông Hưng, Thái Bình

– Diện tích xây dựng là: 124m2 (kích thước đất xây dựng tối thiểu là 13,5mx11m)

– Tổng diện tích sàn xây dựng 215m2

– Số tầng xây dựng công trình: 2 tầng + mái thái

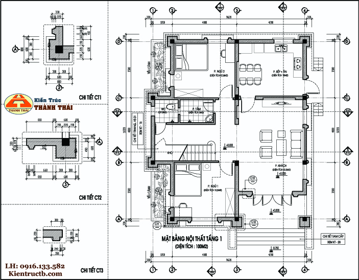
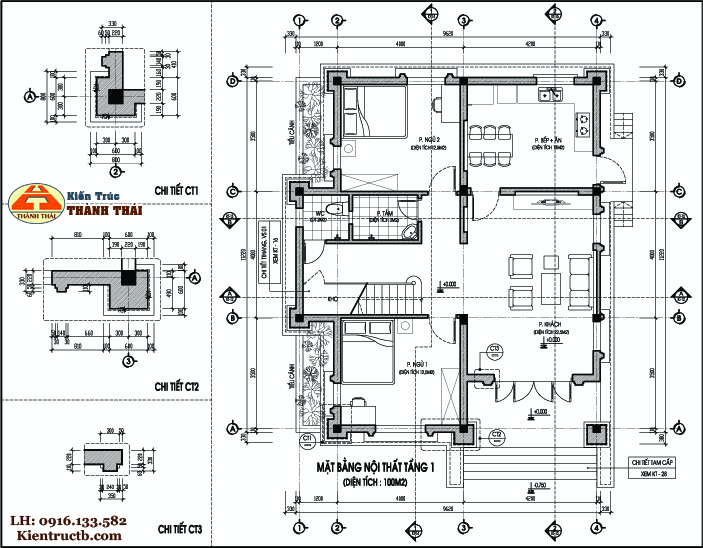
+ tầng 1 bao gồm: 2 phòng ngủ; 1 phòng khách; 1 bếp + ăn và 1 khu vệ sinh chung

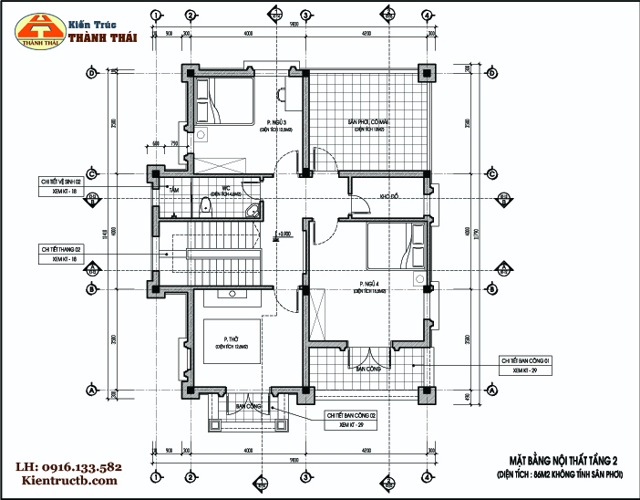
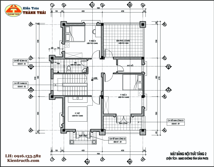
+ tầng 2 bao gồm: 2 phòng ngủ; 1 phòng thờ và 1 khu vệ sinh chung + sân phơi

– Kiến trúc theo phong cách thiết kế biệt thự pháp 2 tầng mái thái.

2/ Một số hình ảnh về mẫu thiết kế biệt thự pháp 2 tầng.

Phối cảnh 3D công trình – góc nhìn 01

Bản vẽ mặt bằng bố trí công năng tầng 1 công trình

Bản vẽ mặt bằng bố trí công năng tầng 2 công trình

Bản vẽ mặt đứng chính công trình

Bản vẽ mặt cắt ngang công trình

Phối cảnh 3D công trình – góc nhìn 02

Phối cảnh 3D công trình – góc nhìn 03

Phối cảnh 3D công trình – góc nhìn 04

Hình ảnh thực tế công trình đang hoàn thiện 01

Hình ảnh thực tế công trình đang hoàn thiện 02

Hình ảnh thực tế công trình đang hoàn thiện 03

Hồ sơ thiết kế thi công (có sẵn)

hồ sơ thiết kế thi công bao gồm: phối cảnh ngoại thất công trình; bản vẽ thiết kế kiến trúc; bản vẽ thiết kế kết cấu công trình và bản vẽ thiết kế điện nước công trình.

 

0916.133.582
icon