Khu dân cư DC1, tổ 4 phường Hoàng Diệu - Tp Thái Bình ( Đối diện cổng đài phát thanh và truyền hình Thái Bình )

Điện thoại: 0916.133.582

Email: kientructhanhthai@gmail.com

X

Mẫu 07- Biệt thự 3 tầng mái nhật tại Đông Hưng, Thái Bình

1/ Giới thiệu mẫu biệt thự 3 tầng mái nhật.

Mái nhật là dạng mái có 4 diện thu vào chính giữa mái. Đây là dạng mái phổ biến trong các công trình kiến trúc của Nhật. Những công trình làm mái nhật có ưu điểm là khoe được phần mái ở nhiều góc độ khác nhau, tính đăng đối cao nên tạo được vẻ trang nghiêm, nhất quán. Dưới đây là những thông tin cơ bản về mẫu thiết kế biệt thự 3 tầng mái nhật tại Thái Bình.

– Địa chỉ xây dựng: tại Phú Châu, Đông Hưng, Thái Bình

– Diện tích xây dựng là: 110m2 (kích thước đất xây dựng tối thiểu là 14mx12,5m)

– Tổng diện tích sàn xây dựng 315m2

– Số tầng xây dựng công trình: 3 tầng + mái nhật

+ tầng 1 bao gồm: 1 phòng ngủ khép kín; 1 phòng khách; 1 bếp + ăn và 1 khu vệ sinh chung

+ tầng 2 bao gồm: 3 phòng ngủ khép kín; ngoài ra là không gian cầu thang, sảnh tầng và ban công

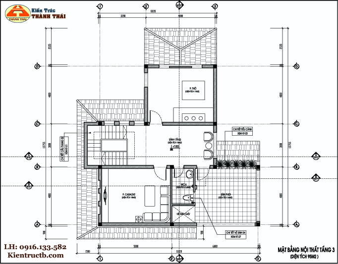
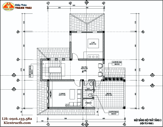
+ tầng 3 bao gồm: 1 phòng giải trí; 1 phòng thờ và khu vệ sinh chung.

– Kiến trúc theo phong cách thiết kế biệt thự 3 tầng mái nhật hiện đại.

2/ Một số hình ảnh về mẫu thiết kế biệt thự 3 tầng mái nhật tại Thái Bình.

Phối cảnh 3D công trình – góc nhìn 01

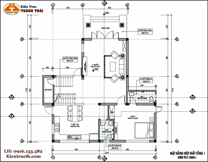
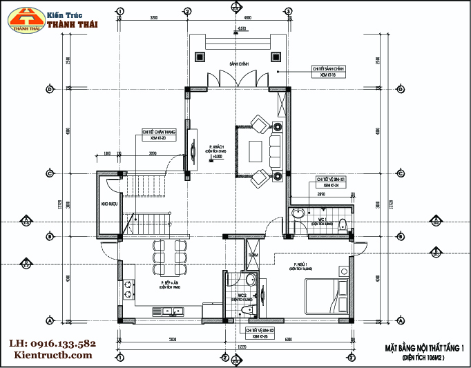
Bản vẽ mặt bằng công năng tầng 1 công trình

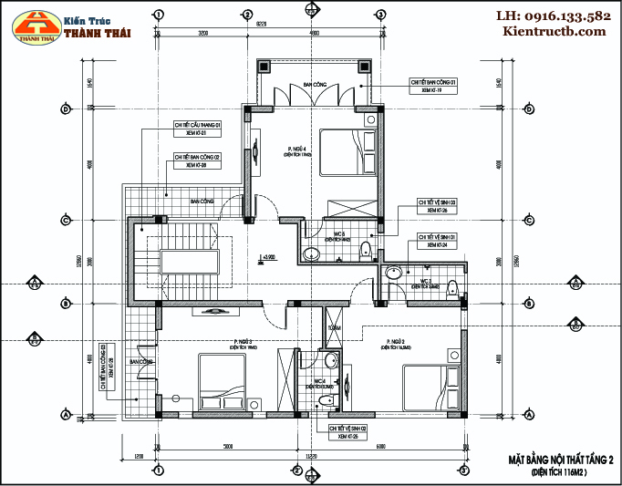
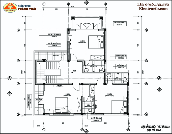
Bản vẽ mặt bằng công năng tầng 2 công trình

Bản vẽ mặt bằng công năng tầng 3 công trình

Bản vẽ mặt đứng chính công trình

Bản vẽ mặt cắt ngang công trình

Phối cảnh 3D công trình – góc nhìn 02

Phối cảnh 3D công trình – góc nhìn 03

Phối cảnh 3D công trình – góc nhìn 04

Phối cảnh 3D công trình – góc nhìn 05

Hình ảnh công trình đang hoàn thiện 01

Hình ảnh công trình đang hoàn thiện 02

Công trình hiện đã hoàn thành và đưa vào sử dụng.

hồ sơ thiết kế thi công bao gồm: phối cảnh ngoại thất công trình; bản vẽ thiết kế kiến trúc; bản vẽ thiết kế kết cấu công trình và bản vẽ thiết kế điện nước công trình.

0916.133.582
icon