Khu dân cư DC1, tổ 4 phường Hoàng Diệu - Tp Thái Bình ( Đối diện cổng đài phát thanh và truyền hình Thái Bình )

Điện thoại: 0916.133.582

Email: kientructhanhthai@gmail.com

X

Mẫu 01 – Nhà lô 2 mặt tiền tại thành phố Thái Bình

1/ Giới thiệu mẫu nhà lô 4 tầng, 2 mặt tiền tại Thái Bình

– Địa chỉ xây dựng: khu đô thị 379, thành phố Thái Bình

– Diện tích xây dựng là: 60m2 (kích thước đất xây dựng tối thiểu là 7,8mx7,8m)

– Tổng diện tích sàn xây dựng 258m2

– Số tầng xây dựng công trình: 4 tầng

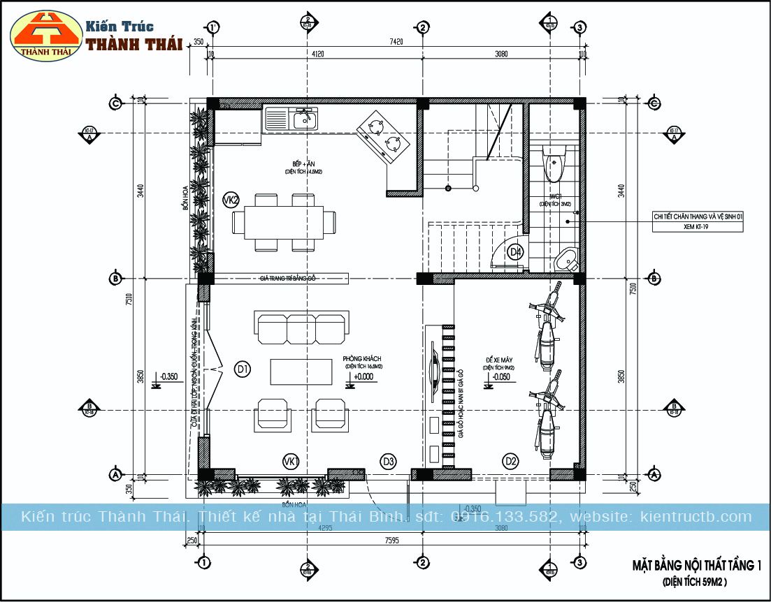
+ tầng 1 bao gồm: 1 phòng khách; 1 bếp+ăn; sân để xe máy và 1 khu vệ sinh chung

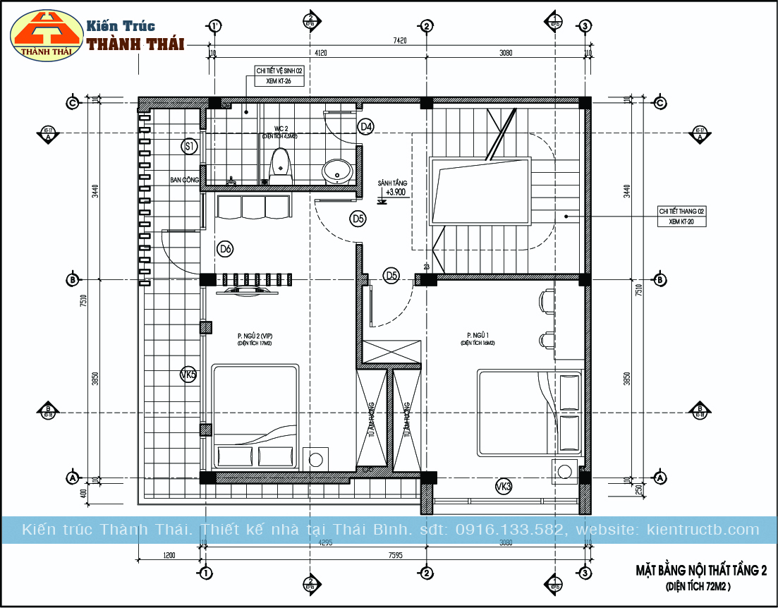
+ tầng 2 bao gồm: 2 phòng ngủ và 1 khu vệ sinh chung.

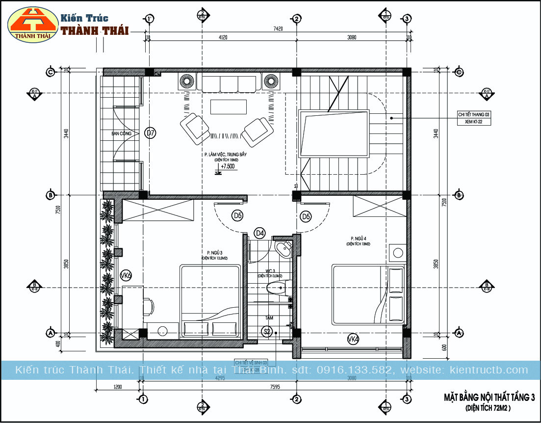
+ tầng 3 bao gồm: 2 phòng ngủ; 1 phòng sinh hoạt chung và 1 khu vệ sinh chung

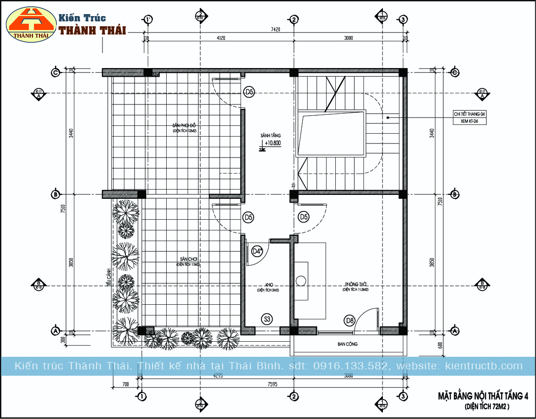
+ tầng 4 bao gồm: 1 phòng thờ; khu giặt phơi và sân chơi

– Kiến trúc theo phong cách thiết kế nhà phố 4 tầng hiện đại

2/ Một số hình ảnh về mẫu thiết kế nhà lô 4 tầng, 2 mặt tiền.

Phối cảnh công trình – góc 01

Bản vẽ mặt bằng bố trí công năng tầng 1 công trình

Bản vẽ mặt bằng bố trí công năng tầng 2 công trình

Bản vẽ mặt bằng bố trí công năng tầng 3 công trình

Bản vẽ mặt bằng bố trí công năng tầng 4 công trình

Bản vẽ mặt đứng công trình

Bản vẽ mặt cắt công trình

Phối cảnh công trình – góc 02

Phối cảnh công trình – góc 03

Phối cảnh công trình – góc 04

Hồ sơ bản vẽ thiết kế thi công (có sẵn)

bao gồm: phối cảnh ngoại thất công trình; bản vẽ thiết kế kiến trúc; bản vẽ thiết kế kết cấu công trình và bản vẽ thiết kế điện nước công trình.

0916.133.582
icon