Nhà hiện trạng đã xây dựng 1 tầng, chủ nhà muốn cải tạo lên tầng 2 làm không gian sinh hoạt gia đình, dành toàn bộ tầng 1 làm không gian kinh doanh cafe và đồ uống. Hình thức mặt tiền chủ nhà mong muốn thiết kế một ngôi nhà lô 2 tầng đẹp, hiện đại, phù hợp để vừa kinh doanh vừa sinh hoạt gia đình.
– Địa chỉ xây dựng: Đoan Hùng, Hưng Hà, Thái Bình
– Diện tích xây dựng là: 160m2 (kích thước tổng ngôi nhà là 9,1mx17,5m)
– Tổng diện tích sàn xây dựng 340m2
– Số tầng xây dựng công trình: 2 tầng
+ tầng 1 bao gồm: toàn bộ tầng 1 là không gian kinh doanh cafe + đồ uống
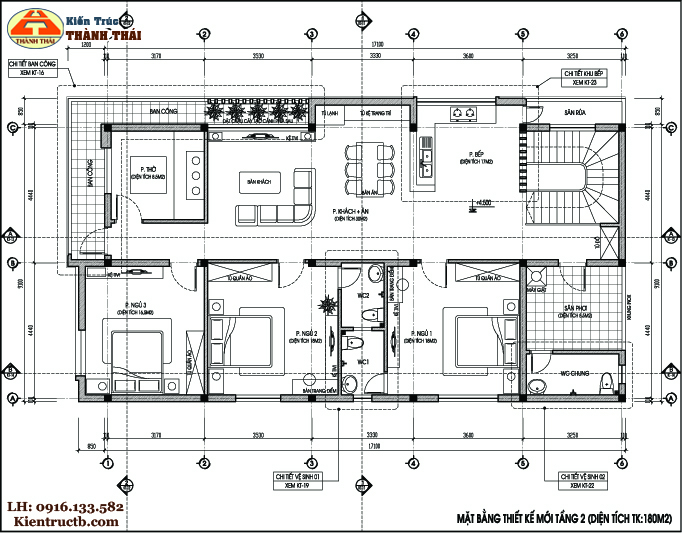
+ tầng 2 bao gồm: 3 phòng ngủ (trong đó có 2 phòng khép kín); 1 phòng khách + bếp ăn; 1 phòng thờ và 1 khu vệ sinh chung.
– Kiến trúc đẹp, theo phong cách thiết kế nhà lô hiện đại 2 mặt tiền.
Mặt bằng thiết kế tầng 1 công trình
Mặt bằng thiết kế tầng 2 công trình
Bản vẽ mặt đứng chính công trình
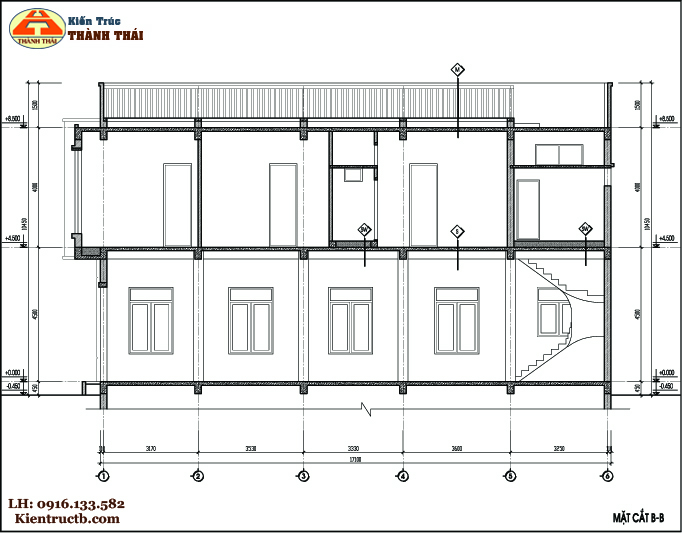
Bản vẽ mặt cắt dọc công trình
Hình ảnh phối cảnh góc công trình 01
Hình ảnh phối cảnh góc công trình 02
Hình ảnh phối cảnh tổng thể công trình
Hình ảnh tổng thể sân vườn công trình 01
Hình ảnh tổng thể sân vườn công trình 02
Hình ảnh thực tế công trình đang trong giai đoạn hoàn thiện
hồ sơ thiết kế thi công bao gồm: phối cảnh ngoại thất công trình; bản vẽ thiết kế kiến trúc; bản vẽ thiết kế kết cấu công trình và bản vẽ thiết kế điện nước công trình.