Khu dân cư DC1, tổ 4 phường Hoàng Diệu - Tp Thái Bình ( Đối diện cổng đài phát thanh và truyền hình Thái Bình )

Điện thoại: 0916.133.582

Email: kientructhanhthai@gmail.com

X

Mẫu 04-Nhà lô lệch tầng thiết kế tại thành phố Thái Bình

1/ Giới thiệu về mẫu thiết kế nhà lệch tầng tại Thái Bình

Chiều dài khu đất khá lớn nên việc bố trí cụm thang ở giữa theo dạng nhà lệch tầng, chia trước sau thành các phòng sinh hoạt là rất phù hợp. Vừa giúp thay đổi tạo sự đa dạng cho các không gian, vừa giảm bớt được chiều dài ngôi nhà (không phải bố trí hành lang đi từ trước ra sau). Dưới đây là một vài thông tin về mẫu thiết kế nhà tại Thái Bình.

– Địa chỉ xây dựng: khu TĐC Đồng Lôi, tp. Thái Bình, tỉnh Thái Bình

– Diện tích xây dựng là: 76,5m2 (kích thước tổng ngôi nhà là 4,5mx17m)

– Tổng diện tích sàn xây dựng 312m2

– Số tầng xây dựng công trình: 4 tầng

+ tầng 1 bao gồm: gara ô tô + để xe máy; 1 bếp + ăn và 1 khu vệ sinh chung

+ tầng lửng bao gồm: 1 phòng khách rộng 25m2

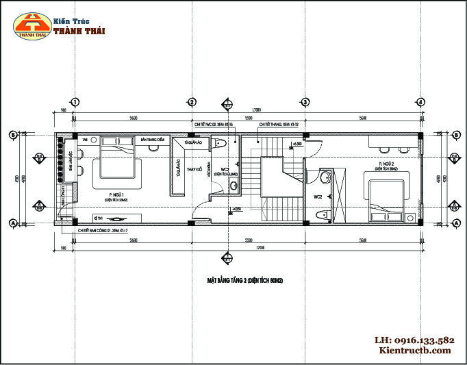
+ tầng 2 bao gồm: 2 phòng ngủ khép kín diện tích 20m2- 23m2

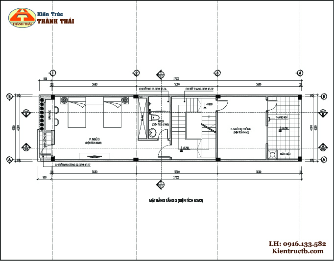
+ tầng 3 bao gồm: 1 phòng ngủ khép kín rộng 30m2; 1 phòng ngủ dự phòng + khu giặt phơi

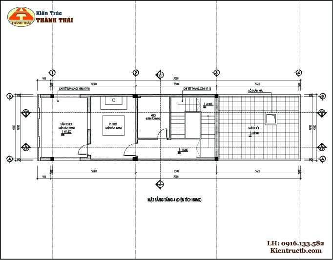
+ tầng 4 bao gồm: 1 phòng thờ; 1 nhà kho và không gian trước mặt làm sân chơi

– Nhà được thiết kế theo dạng nhà lệch tầng tạo sự thay đổi đa dạng trong các không gian sinh hoạt.

2/ Một số hình ảnh về mẫu thiết kế nhà lô lệch tầng.

Mặt bằng thiết kế tầng 1 công trình

Mặt bằng thiết kế tầng lửng công trình

Mặt bằng thiết kế tầng 2 công trình

Mặt bằng thiết kế tầng 3 công trình

Mặt bằng thiết kế tầng 4 công trình

Bản vẽ mặt cắt dọc công trình

hình ảnh phối cảnh công trình 01

hình ảnh phối cảnh công trình 02

hình ảnh phối cảnh công trình 03

Hình ảnh thực tế công trình đang trong giai đoạn hoàn thiện

hồ sơ thiết kế thi công bao gồm: phối cảnh ngoại thất công trình; bản vẽ thiết kế kiến trúc; bản vẽ thiết kế kết cấu công trình và bản vẽ thiết kế điện nước công trình.

0916.133.582
icon