Khu dân cư DC1, tổ 4 phường Hoàng Diệu - Tp Thái Bình ( Đối diện cổng đài phát thanh và truyền hình Thái Bình )

Điện thoại: 0916.133.582

Email: kientructhanhthai@gmail.com

X

Mẫu 01 – Nhà vườn thiết kế tại Kiến Xương, Thái Bình

1/ Giới thiệu mẫu nhà vườn 01 tại Thái Bình

– Địa chỉ xây dựng: tại Vũ Công, Kiến Xương, Thái Bình

– Diện tích xây dựng là: 130m2 (mặt tiền 7,5m), diện tích khu đất rộng 250m2

– Tổng diện tích sàn xây dựng 130m2

– Số tầng xây dựng công trình: 1 tầng

– Kiến trúc nhà theo phong cách kiến trúc mái thái hiện đại.

2/ Một số hình ảnh về mẫu thiết kế nhà vườn tại Kiến Xương, Thái Bình

góc phối cảnh 01

góc phối cảnh 02

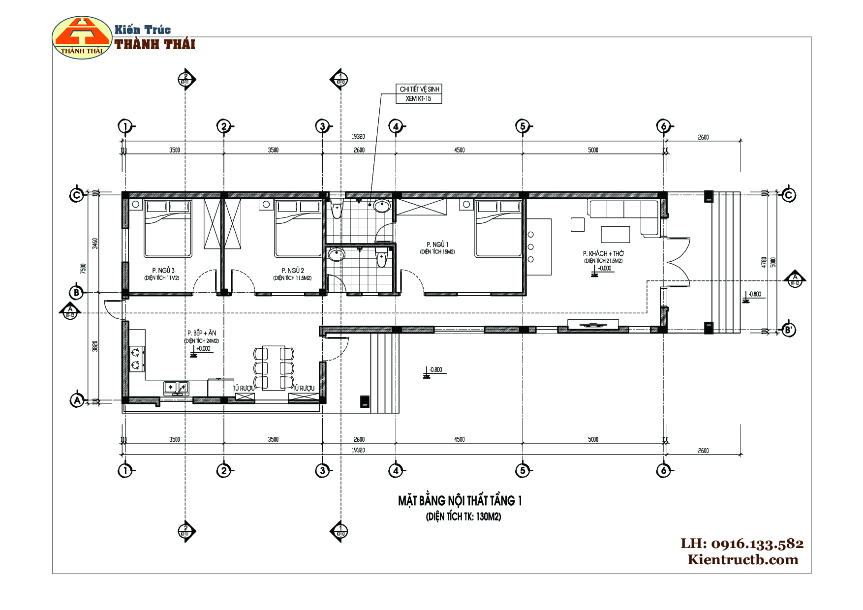
Bản vẽ kỹ thuật mặt bằng bố trí công năng công trình

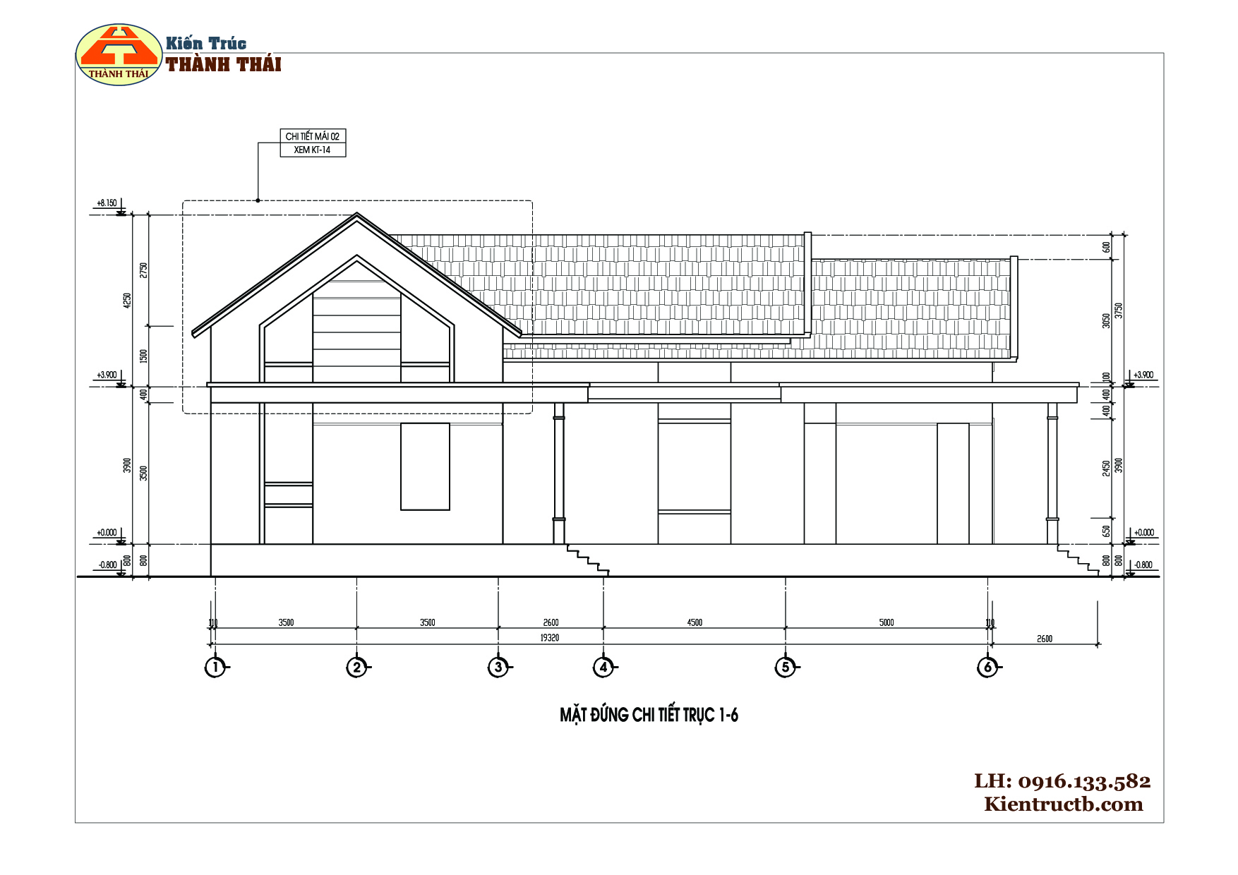
Bản vẽ kỹ thuật mặt bên công trình

Bản vẽ kỹ thuật – mặt cắt dọc công trình

góc phối cảnh 03

góc phối cảnh 04

0916.133.582
icon