Khu dân cư DC1, tổ 4 phường Hoàng Diệu - Tp Thái Bình ( Đối diện cổng đài phát thanh và truyền hình Thái Bình )

Điện thoại: 0916.133.582

Email: kientructhanhthai@gmail.com

X

Mẫu 03 – Nhà vườn thiết kế tại Hưng Hà, Thái Bình

1/ Giới thiệu mẫu nhà vườn 03 tại Thái Bình

– Địa chỉ xây dựng: tại Thống Nhất, Hưng Hà, Thái Bình

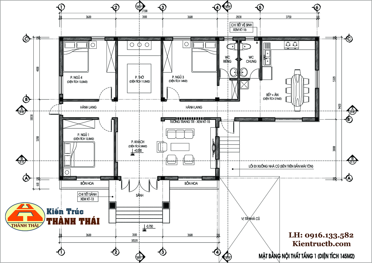
– Diện tích xây dựng là: 145m2 (mặt tiền 17m),

– Tổng diện tích sàn xây dựng 145m2

– Số tầng xây dựng công trình: 1 tầng

– Thiết kế theo phong cách kiến trúc nhà vườn mái Nhật hiện đại.

2/ Một số hình ảnh về mẫu thiết kế nhà vườn tại Hưng Hà, Thái Bình

Góc phối cảnh công trình 01

Bản vẽ mặt bằng bố trí công năng của công trình

Bản vẽ mặt đứng chính công trình

Bản vẽ mặt cắt dọc công trình

Góc phối cảnh công trình 02

Góc phối cảnh công trình 03

Góc phối cảnh công trình 04

0916.133.582
icon